


$242,000
2285 Mill Loop
Spartanburg, SC 29301
About This Property
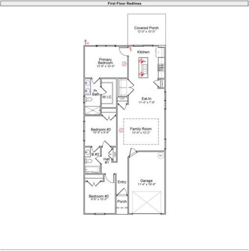
Welcome to The Baker – A Charming One-Story Home Designed for Comfortable Living. Step into effortless style and functionality with The Baker, a beautifully crafted one-story home featuring 3 bedrooms, 2 full bathrooms, and a convenient one-car garage. As you enter, you'll be greeted by elegant luxury vinyl plank flooring that flows throughout all common areas!
The heart of the home is the open-concept kitchen, where shaker-style cabinets with crown molding, quartz countertops, and a large center island with pendant lights create the perfect space for both cooking and entertaining. An electric range and thoughtful layout make meal prep a breeze. Retreat to the primary suite, a private oasis complete with a dual-sink vanity, a five-foot walk-in shower, and a generous walk-in closet offering ample storage.
Step outside to enjoy the South Carolina sunshine on your 12' x 10' covered porch- ideal for morning coffee, weekend grilling, or simply relaxing outdoors. Whether you're starting out, downsizing, or looking for easy one-level living, The Baker is ready to welcome you home.
SPN MLS # 334920
Quick Facts
Time on Site
13 days ago
Property Type
Residential
Year Built
2026
Lot Size
6,969 sqft
Price/Sq.Ft.
$211
Property Details
Schools
Features & Amenities
Features:
- Cable Available
- Ceilings-Some 9 Ft +
- Ceiling - Smooth
- Solid Surface Counters
- Pantry
Location & Map
Map View
Loading map...
Additional Information
Basement
Community
- Common Areas
- Gated
- Street Lights
- Pool
- Sidewalks
- Dog Park
Lot & Land
- Level
Primary Suite
- Bath - Full
- Double Vanity
- Shower Only
- Walk-in Closet
Interior Details
- Carpet
- Luxury Vinyl
- Dishwasher
- Disposal
- Microwave
- Electric Oven
- Tilt-Out
- 1st Floor
- Cable Available
- Ceilings-Some 9 Ft +
- Ceiling - Smooth
- Solid Surface Counters
- Pantry
New Construction
Parking & Garage
- Attached
- Garage Door Opener
Exterior Features
- Architectural
- Slab
- Vinyl Siding
- Covered Patio
H O A & Association
- Common Area
- Pool
- Street Lights
Property Overview
- One
- Craftsman
Utilities & Systems
- Private Sewer
- Central Air
- Gas
- Tankless
- Private


