





Newberry Model: Single-Level Living & High-End Finishes near TR
3 Halowell Lane, Travelers Rest, SC 29690
$747,190
$747,190
Does this home feel like a match?
Let us know — it helps us curate better suggestions for you.
Property Highlights
Bedrooms
4
Bathrooms
3
Living Area
2,455 SqFt
Property Details
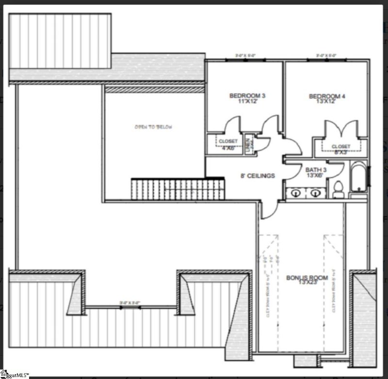
Welcome to Echo Grove, a premier new home community just 5 minutes from charming downtown Travelers Rest. Designed for comfort and ease, the Newberry model offers the ultimate in single-level living with a spacious, well-thought-out floor plan. Featuring 3 bedrooms, an office, and a sunroom, this home combines flexibility with style.
Time on Site
5 months ago
Property Type
Residential
Year Built
2025
Lot Size
21,344 SqFt
Price/Sq.Ft.
$304
HOA Fees
Request Info from Buyer's AgentProperty Details
School Information
Additional Information
Region
Agent Contacts
- Greenville: (864) 757-4000
- Simpsonville: (864) 881-2800
Community & H O A
Room Dimensions
Property Details
- Crawl Space
- Crawl Space/Slab
- Ranch
- Craftsman
- Corner
- Some Trees
- Underground Utilities
Exterior Features
- Brick Veneer-Partial
- Concrete Plank
- Hardboard Siding
- Porch-Front
- Porch-Other
- Porch-Covered Back
Interior Features
- Carpet
- Ceramic Tile
- Laminate Flooring
- Luxury Vinyl Tile/Plank
- Dishwasher
- Disposal
- Stand Alone Range-Gas
- Microwave-Built In
- Attic
- Garage
- Laundry
- Bonus Room/Rec Room
- Ceiling 9ft+
- Ceiling Smooth
- Countertops Granite
- Smoke Detector
- Walk In Closet
- Countertops-Other
- Countertops – Quartz
- Pantry – Closet
Systems & Utilities
- Gas
- Tankless
- Central Forced
- Electric
- Forced Air
- Natural Gas
Showing & Documentation
- Warranty Furnished
- Restric.Cov/By-Laws
- Termite Bond
- Copy Earnest Money Check
- Pre-approve/Proof of Fund
- Specified Sales Contract
The information is being provided by Greater Greenville MLS. Information deemed reliable but not guaranteed. Information is provided for consumers' personal, non-commercial use, and may not be used for any purpose other than the identification of potential properties for purchase. Copyright 2025 Greater Greenville MLS. All Rights Reserved.