





219 Witherspoon Street in Carnes Crossroads, Summerville, SC
219 Witherspoon Street, Summerville, SC 29486
$484,999
$484,999
Property Highlights
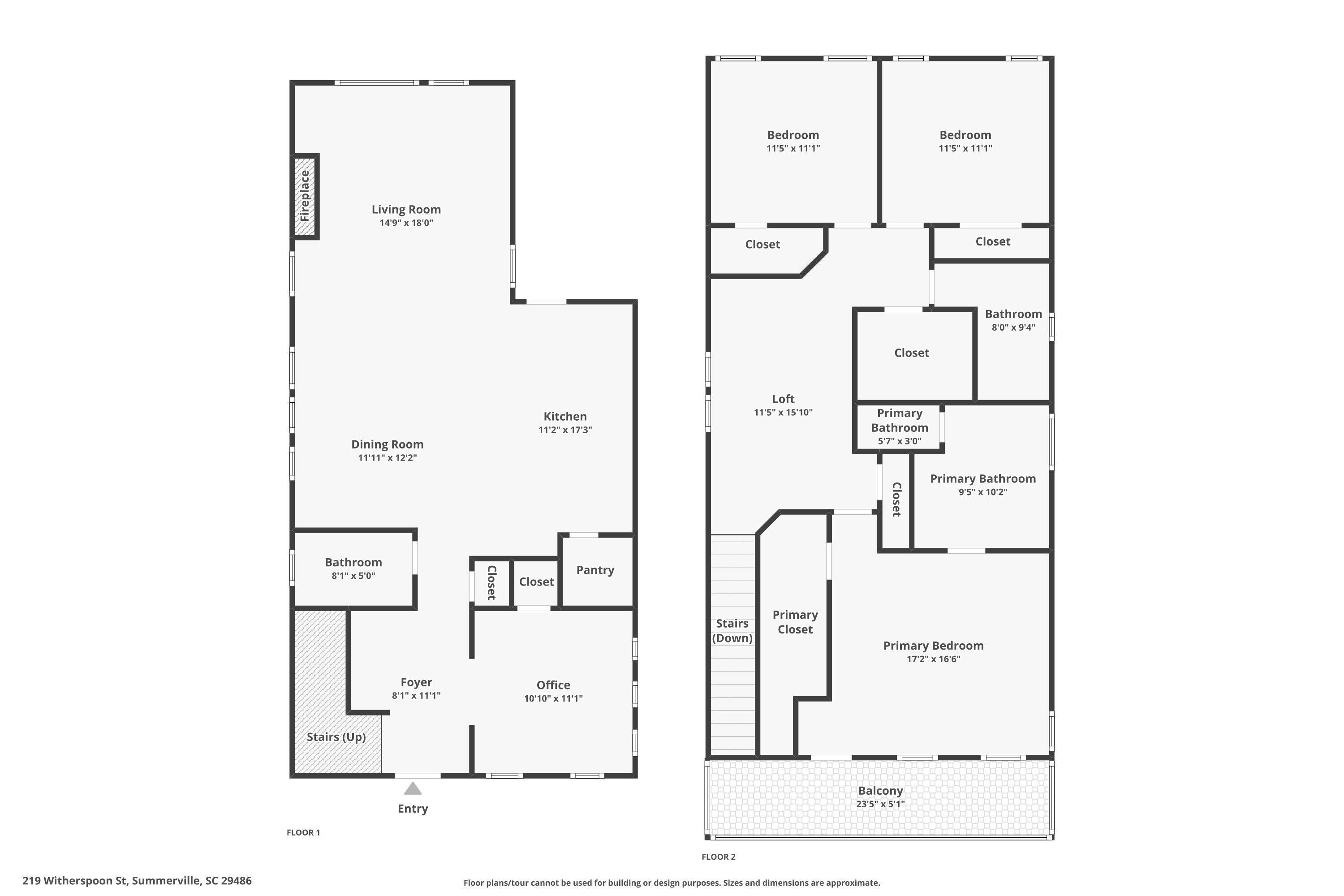
Bedrooms
3
Bathrooms
2
Property Details
Welcome to the Pinckney -- a charming Charleston single-style home that balances timeless curb appeal with modern updates. From the moment you arrive, the double balcony porches make a striking first impression and invite you inside to a layout that has all the right spaces without being overwhelming to maintain.Step through the front door into a flexible office/flex room that's ideal for working from home or creating a quiet retreat. The heart of the home is the open-concept family room, dining area, and gourmet kitchen -- perfect for everyday living and entertaining. The chef's kitchen is a standout with GE Profile stainless steel appliances, including double wall ovens, a gas burner cooktop with stainless hood, designer white cabinetry with soft-close doors and drawers, andgleaming white quartz countertops.
Time on Site
4 weeks ago
Property Type
Residential
Year Built
2024
Lot Size
5,662 SqFt
Price/Sq.Ft.
N/A
HOA Fees
Request Info from Buyer's AgentProperty Details
School Information
Additional Information
Region
Lot And Land
Pool And Spa
Agent Contacts
Community & H O A
Room Dimensions
Property Details
Exterior Features
Interior Features
Systems & Utilities
Financial Information
Additional Information
- IDX
- -80.10745
- 33.064151
- Slab