Sold on 9/30/2025 for $275,000





More Photos
4046 Rustling Grass Trail, Inman, SC 29349
$279,299
$279,299
Sale Summary
Sold below asking price • Sold quickly
Bedrooms
5
Bathrooms
2
Living Area
2,578 SqFt
This property sold 1 month ago and is no longer available for purchase.
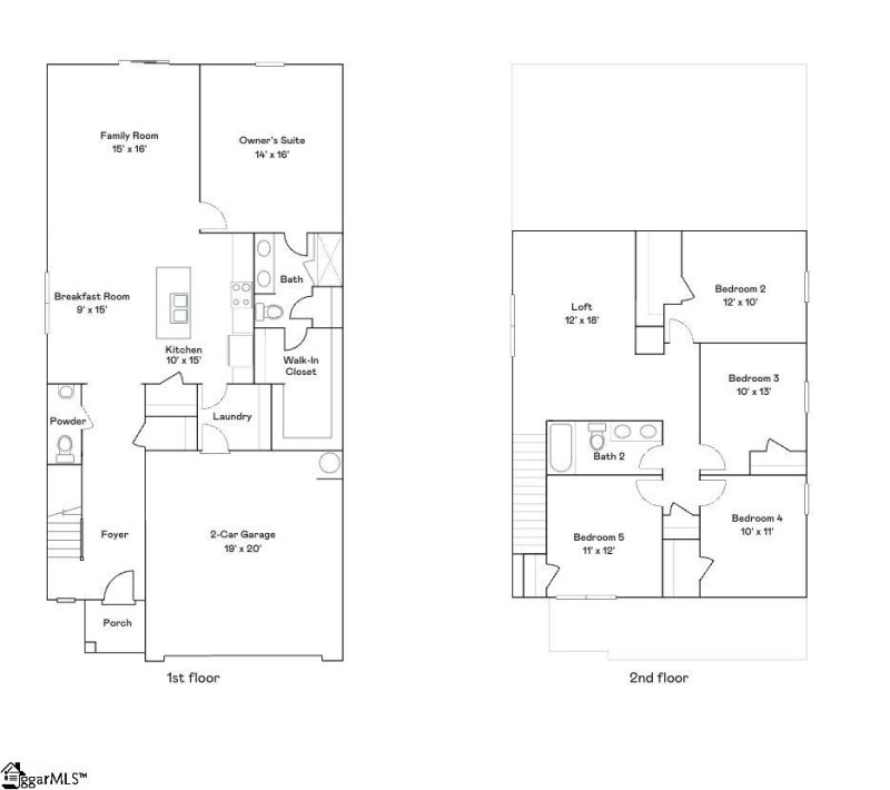
View active listings in The Maple →The Frost floorplan at The Maple in Inman, SC, is the perfect home for a growing family. With 5 bedrooms and 3 bathrooms, this spacious two-story design provides room for everyone to thrive. The first floor boasts an open layout, with the family room, kitchen, and breakfast area flowing together to create a warm, inviting space for daily living and entertaining.
Time on Site
2 months ago
Property Type
Residential
Year Built
2025
Lot Size
7,840 SqFt
Price/Sq.Ft.
$108
HOA Fees
Request Info from Buyer's AgentThe information is being provided by Greater Greenville MLS. Information deemed reliable but not guaranteed. Information is provided for consumers' personal, non-commercial use, and may not be used for any purpose other than the identification of potential properties for purchase. Copyright 2025 Greater Greenville MLS. All Rights Reserved.