Sold on 6/18/2025 for $435,992





More Photos
218 Nicolet Drive, Simpsonville, SC 29681
$435,992
$435,992
Sale Summary
Sold at asking price • Sold in typical time frame
Bedrooms
4
Bathrooms
3
Living Area
2,433 SqFt
This property sold 6 months ago and is no longer available for purchase.
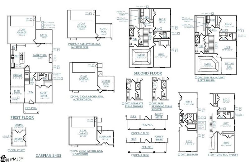
View active listings in The Settlement →*Rate reduction* Explore the Caspian floor plan by Dream Finders Homes in The Settlement, a sought-after community in Simpsonville. This home offers 2,433 square feet of living space, featuring 4 bedrooms, 3 bathrooms, and a 2-car garage. Step inside to find an open-concept layout filled with natural light, creating a welcoming atmosphere.
Time on Site
8 months ago
Property Type
Residential
Year Built
2025
Lot Size
N/A
Price/Sq.Ft.
$179
HOA Fees
Request Info from Buyer's AgentLoading map...
The information is being provided by Greater Greenville MLS. Information deemed reliable but not guaranteed. Information is provided for consumers' personal, non-commercial use, and may not be used for any purpose other than the identification of potential properties for purchase. Copyright 2025 Greater Greenville MLS. All Rights Reserved.