Sold on 12/31/2024 for $255,130





More Photos
2121 Mayberry Drive, Spartanburg, SC 29320
$255,000
$255,000
Sale Summary
Sold at asking price • Extended time on market
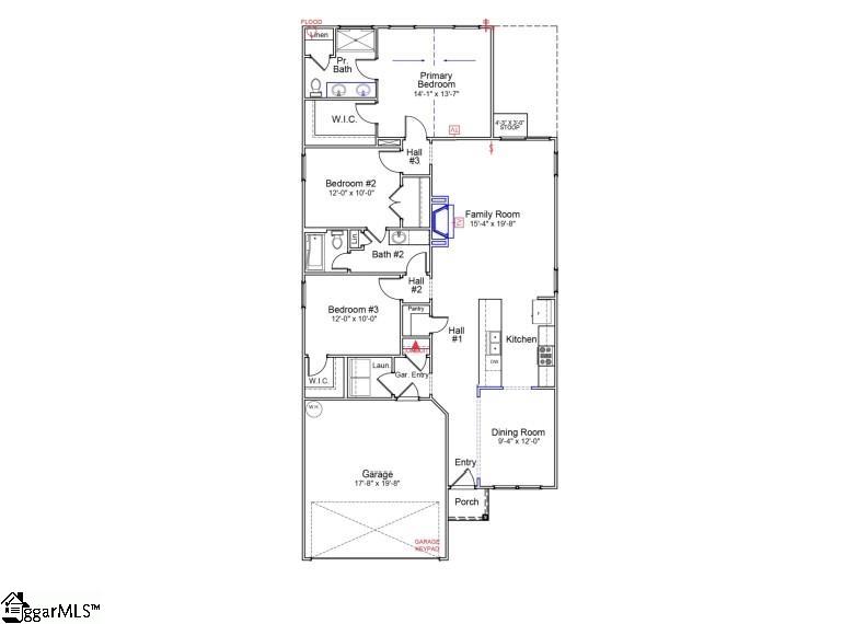
Bedrooms
3
Bathrooms
2
Living Area
1,548 SqFt
This property sold 10 months ago and is no longer available for purchase.
View active listings in Mayfair Village →The popular Brunswick floorplan is a one-story, three-bedroom, two bathroom home w/stone accents on the front. This home has nine-foot ceilings, a separate dining room, a roomy kitchen with shaker style cabinets and ample counter space that opens up to a spacious family room w/fireplace. The primary bedroom suite features a walk-in closet, dual vanities, and walk-in shower.
Time on Site
1 year ago
Property Type
Residential
Year Built
2024
Lot Size
6,969 SqFt
Price/Sq.Ft.
$165
HOA Fees
Request Info from Buyer's AgentThe information is being provided by Greater Greenville MLS. Information deemed reliable but not guaranteed. Information is provided for consumers' personal, non-commercial use, and may not be used for any purpose other than the identification of potential properties for purchase. Copyright 2025 Greater Greenville MLS. All Rights Reserved.