





4026 Rustling Grass Trail in The Maple, Inman, SC
SOLD4026 Rustling Grass Trail, Inman, SC 29349
$292,299
$292,299
Sale Summary
Sold below asking price • Sold in typical time frame
Does this home feel like a match?
Let us know — it helps us curate better suggestions for you.
Property Highlights
Bedrooms
5
Bathrooms
2
Living Area
2,578 SqFt
Property Details
This Property Has Been Sold
This property sold yesterday and is no longer available for purchase.
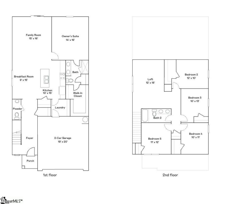
View active listings in The Maple →The Frost floorplan at The Maple in Inman, SC, is the perfect home for a growing family. With 5 bedrooms and 3 bathrooms, this spacious two-story design provides room for everyone to thrive. The first floor boasts an open layout, with the family room, kitchen, and breakfast area flowing together to create a warm, inviting space for daily living and entertaining.
Time on Site
2 months ago
Property Type
Residential
Year Built
2025
Lot Size
7,840 SqFt
Price/Sq.Ft.
$113
HOA Fees
Request Info from Buyer's AgentProperty Details
School Information
Additional Information
Region
Agent Contacts
- Greenville: (864) 757-4000
 - Simpsonville: (864) 881-2800
 
Community & H O A
Room Dimensions
Property Details
Exterior Features
- Tilt Out Windows
 - Vinyl/Aluminum Trim
 
Interior Features
- 2nd Floor
 - Walk-in
 - Dryer – Electric Hookup
 
- Carpet
 - Laminate Flooring
 
- Dishwasher
 - Disposal
 - Stand Alone Range-Gas
 - Microwave-Built In
 
- Laundry
 - Loft
 
- Ceiling Smooth
 - Open Floor Plan
 - Smoke Detector
 - Countertops-Other
 - Countertops – Quartz
 - Pantry – Walk In
 
Systems & Utilities
- Central Forced
 - Electric
 
- Forced Air
 - Natural Gas
 
Showing & Documentation
- Warranty Furnished
 - Restric.Cov/By-Laws
 
- Call Listing Office/Agent
 - Under Construction
 
The information is being provided by Greater Greenville MLS. Information deemed reliable but not guaranteed. Information is provided for consumers' personal, non-commercial use, and may not be used for any purpose other than the identification of potential properties for purchase. Copyright 2025 Greater Greenville MLS. All Rights Reserved.