




$629,990
532 Winstone Trail
Woodruff, SC 29388
About This Property
Home is Move in Ready! Welcome to Pinebrook! THE ONLY HOMES ON HALF ACRE PLUS HOMESITES IN WOODRUFF, SC WITH PRIME FEATURES AND BASEMENT OPTIONS.
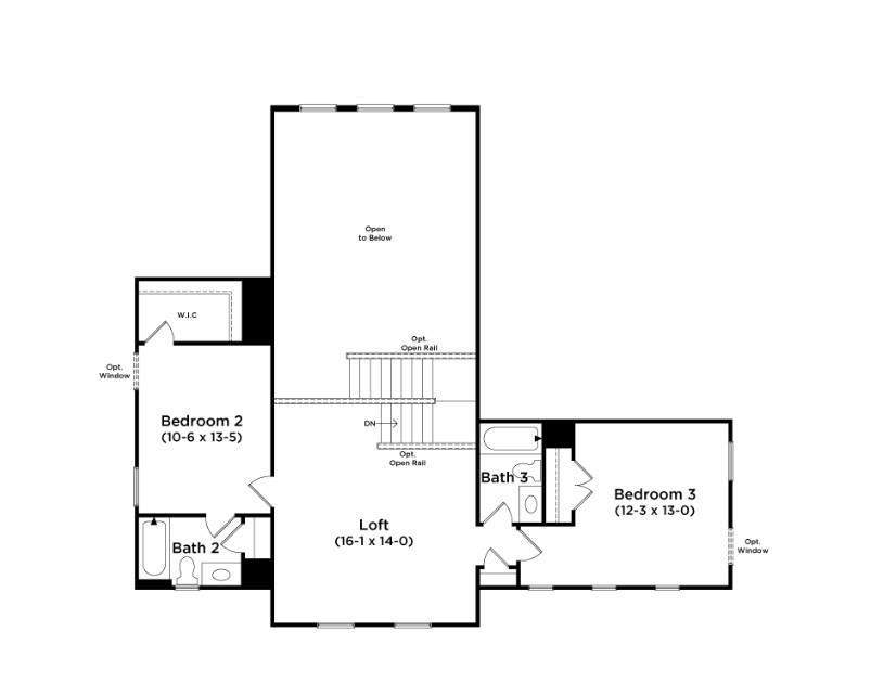
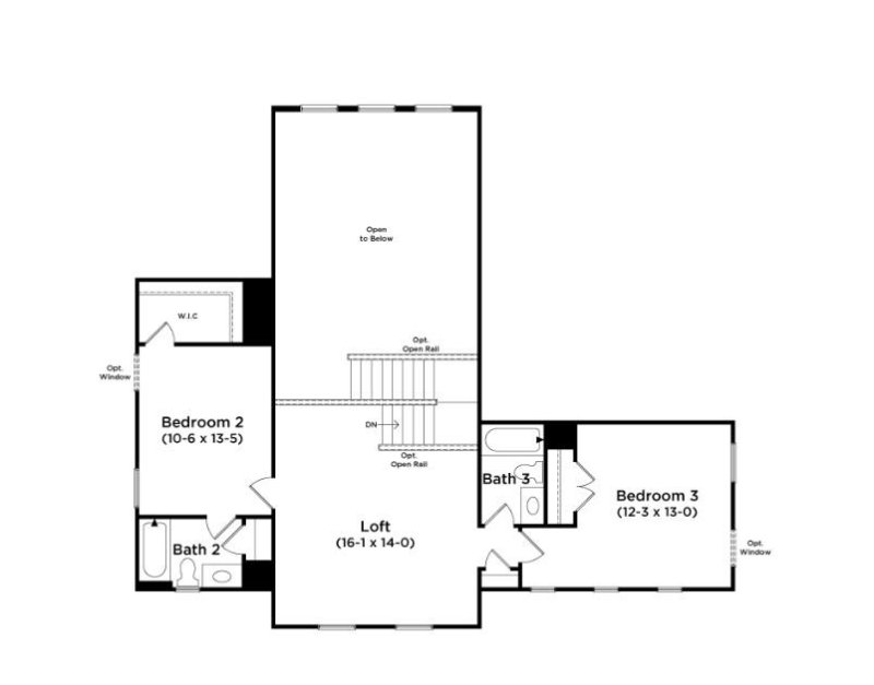
The Kendrick home with a finished basement is over 3700 square feet and sits on 1/2 acre in a beautiful setting. As you come into your entryway from your covered front porch, to the right is a formal living room with trey ceilings for additional living space or even a home office. To your left, there is a dining room that leads into your butlers pantry that gives you that extra counter space and large walk in pantry along with a wet bar with wine rack and space for a fridge.
Entering into your open kitchen and great room, you will be amazed by the features of the kitchen including beautiful white cabinetry, Quartz countertops, tiled backsplash, large center island with farmhouse sink and navy cabinet accents, under cabinet lighting, and gourmet stainless steel appliances including an electric cooktop, double wall oven and range hood. The great room with tall windows and high ceilings give the room lots of natural light and the breakfast room leads out to your covered deck overlooking your large backyard. The Primary Suite is situated off the living room and features trey ceilings, a spacious walk in closet, split vanities, and Roman tiled shower with two showerheads, seat and frameless glass door.
SPN MLS # 332516
Quick Facts
Time on Site
2 months ago
Property Type
Residential
Year Built
2026
Lot Size
22,651 sqft
Price/Sq.Ft.
$169
Property Details
Schools
Features & Amenities
Features:
- Cable Available
- Ceilings-Some 9 Ft +
- Tray Ceiling(s)
- Attic Stairs Pulldown
- Fireplace
- Walk-In Closet(s)
- Wet Bar
- Ceiling - Smooth
- Solid Surface Counters
- Open Floorplan
- Coffered Ceiling(s)
- Walk-In Pantry
- Smart Home
Location & Map
Map View
Loading map...
Additional Information
Basement
- Full
- Inside Entrance
- Walk-Out Access
Security
- Smoke Detector(s)
Lot & Land
- Level
Primary Suite
- Bath - Full
- Double Vanity
- Owner on Main Level
- Shower Only
- Walk-in Closet
Interior Details
- Carpet
- Luxury Vinyl
- Electric Cooktop
- Dishwasher
- Disposal
- Microwave
- Electric Oven
- Self Cleaning Oven
- Wall Oven
- Range Hood
- Tilt-Out
- 1st Floor
- Electric Dryer Hookup
- Walk-In
- Cable Available
- Ceilings-Some 9 Ft +
- Tray Ceiling(s)
- Attic Stairs Pulldown
- Fireplace
- Walk-In Closet(s)
- Wet Bar
- Ceiling - Smooth
- Solid Surface Counters
- Open Floorplan
- Coffered Ceiling(s)
- Walk-In Pantry
- Smart Home
New Construction
Parking & Garage
- 2 Car Attached
- Garage Door Opener
Exterior Features
- Architectural
- Basement
- Hardboard Siding
- Deck
- Patio
- Porch
- Covered Patio
H O A & Association
Property Overview
- Two
- Craftsman
Utilities & Systems
- Septic Tank
- Central Air
- Forced Air
- Public


