




$425,000
1342 Fremont Drive
Wingate, NC 28174
About This Property
Welcome to the Savoy at Canterbury Station! This community is located just minutes from Wingate University & offers all the amenities needed for a functional lifestyle. This beautiful home is set to impress with modern features & elegance.
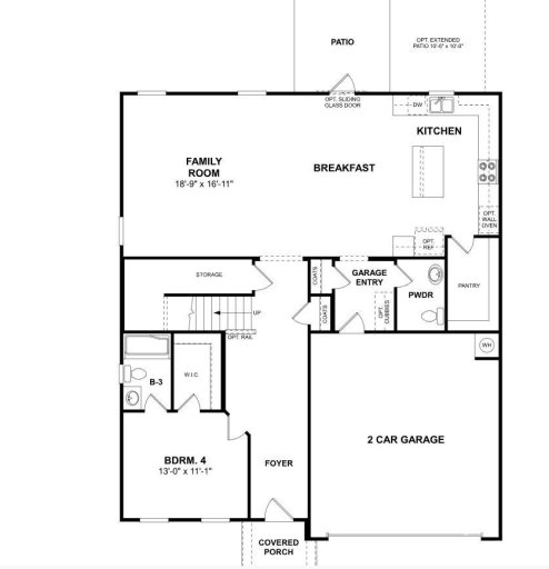
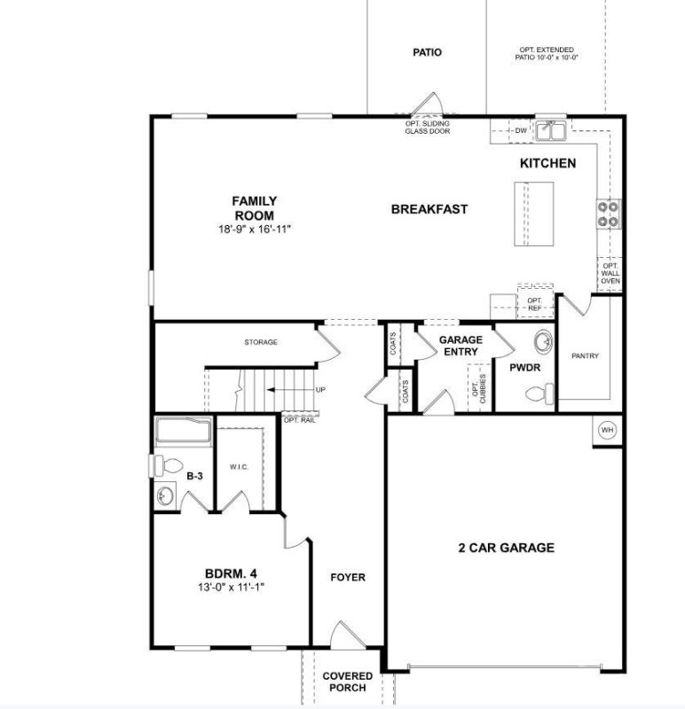
Entering the home from the front covered porch, you are greeted with an inviting and homey foyer. Off to the side, you'll find a main level guest bedroom with a private full bathroom and walk-in closet to ensure your guests have privacy and comfort. The home will open up when entering your main living area.
The kitchen is equipped with stainless steel appliances, a French door refrigerator, kitchen island and quartz counter tops. The breakfast area allows for sit down meals & extra space. Walk out the sliding door to your extended patio to enjoy entertaining or a morning coffee.
CAR MLS # 293734367
Quick Facts
Time on Site
2 months ago
Property Type
Residential
Year Built
2025
Price/Sq.Ft.
$137
Property Details
Schools
Features & Amenities
Features:
- Cable Prewire
- Entrance Foyer
- Kitchen Island
- Open Floorplan
- Storage
- Walk-In Closet(s)
- Walk-In Pantry
Location & Map
Map View
Loading map...
Additional Information
Utilities
- Public Sewer
- Cable Available
- Natural Gas
- City
Lot And Land
Agent Contacts
- Palmetto Park Realty Team Fort Mill: 803.548.6123
Interior Details
- Forced Air
- Natural Gas
- Zoned
- Carpet
- Tile
- Vinyl
- Sliding Doors
- Electric Dryer Hookup
- Laundry Room
- Upper Level
- Washer Hookup
- Cable Prewire
- Entrance Foyer
- Kitchen Island
- Open Floorplan
- Storage
- Walk-In Closet(s)
- Walk-In Pantry
- Carbon Monoxide Detector(s)
- Smoke Detector(s)
Exterior Features
- Architectural Shingle
- Fiber Cement
- Stone
- Front Porch
- Patio
Parking And Garage
- Driveway
- Attached Garage
- Garage Door Opener
- Garage Faces Front
Financial Information
Basement And Foundation
- Slab
Zoning And Restrictions
Square Footage And Levels
- Two
Additional C A R Information
IDX information is provided exclusively for consumers' personal, non-commercial use only; it may not be used for any purpose other than to identify prospective properties consumers may be interested in purchasing. Data is deemed reliable but is not guaranteed accurate by the MLS GRID. Use of this site may be subject to an end user license agreement. Based on information submitted to the MLS GRID as of Tue, Mar 24, 2026. All data is obtained from various sources and may not have been verified by broker or MLS GRID. Supplied Open House Information is subject to change without notice. All information should be independently reviewed and verified for accuracy. Properties may or may not be listed by the office/agent presenting the information. Some IDX listings have been excluded from this website. Any use by you of search facilities of data on the site, other than by a consumer looking to purchase real estate, is prohibited. DMCA Notice: Palmetto Park Realty respects the intellectual property rights of others. If you believe that your work has been copied in a way that constitutes copyright infringement, please provide our designated agent with written notice containing the following information: (1) identification of the copyrighted work claimed to have been infringed; (2) identification of the material that is claimed to be infringing; (3) your contact information; (4) a statement that you have a good faith belief that use of the material is not authorized; and (5) a statement that the information in the notification is accurate and you are authorized to act on behalf of the copyright owner. Please send DMCA notices to: [email protected]