




$287,000
2369 Mill Loop Lot 38
Spartanburg, SC 29301
About This Property
This Property Has Been Sold
This property sold 3 months ago and is no longer available for purchase.
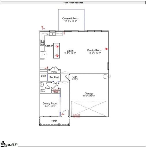
View active listings in Mayfair Village →This Lancaster floorplan is a two-story, four-bedroom, two-and-one-half-bathroom home. The nine foot ceilings on the first floor comes with a roomy kitchen with shaker style cabinets and ample counter space along with a large island that opens up to a eat-in space, great room with a fireplace and guest suite on main. The upstairs primary bedroom suite features a large walk-in closet, dual vanities, a walk-in shower, and water closet!
The laundry room is conveniently located just outside the primary bedroom for convenience. The additional three upstairs bedrooms have spacious closet space and share a full bathroom. We've also added a charming covered porch to enjoy those sweet South Carolina evenings.
Come see this Gated Community with Pool, Cabana, and Pickleball Court.
GVL MLS # 1567236
Quick Facts
Time on Site
7 months ago
Property Type
Residential
Year Built
2025
Lot Size
11,325 sqft
Price/Sq.Ft.
$132
HOA Fees
$570/yr
Property Details
Schools
Features & Amenities
Features:
- High Ceilings
- Ceiling Smooth
- Granite Counters
- Open Floorplan
- Countertops – Quartz
- Pantry
Location & Map
Map View
Loading map...
Additional Information
Community
- Common Areas
- Gated
- Street Lights
- Pool
- Sidewalks
- Other
Lot & Land
- 1/2 Acre or Less
Tax Information
Interior Details
- Carpet
- Luxury Vinyl
- Gas Cooktop
- Dishwasher
- Disposal
- Electric Oven
- Microwave
- Gas Water Heater
- Tankless Water Heater
- 2nd Floor
- Walk-in
- Electric Dryer Hookup
- Laundry Room
- High Ceilings
- Ceiling Smooth
- Granite Counters
- Open Floorplan
- Countertops – Quartz
- Pantry
- Gas Log
Parking & Garage
- Attached
- Paved
- Garage Door Opener
- Key Pad Entry
Exterior Features
- Architectural
- Attached
- Paved
- Garage Door Opener
- Key Pad Entry
- Slab
- Patio
- Front Porch
- Rear Porch
- Vinyl Siding
H O A & Association
- Pool
- Recreation Facilities
- Street Lights
- By-Laws
- Restrictive Covenants
Property Overview
- Two
- Craftsman
Utilities & Systems
- Public Sewer
- Central Air
- Electric
- Forced Air
- Natural Gas
- Cable Available
- Public
Listing Agent Information
The information is being provided by Greater Greenville MLS. Information deemed reliable but not guaranteed. Information is provided for consumers' personal, non-commercial use, and may not be used for any purpose other than the identification of potential properties for purchase. Copyright 2025 Greater Greenville MLS. All Rights Reserved.
You Might Also Like...
Interested in selling in Mayfair Village?

