



$254,000
2329 Mill Loop Lot 48
Spartanburg, SC 29301
About This Property
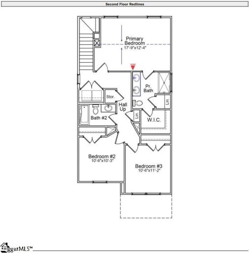
The Bartow plan offers the perfect blend of space and comfort. This thoughtfully designed two-story home features three bedrooms and two-and-one-half bathrooms. Step inside and you'll be greeted by luxury vinyl plank flooring that can be found throughout the entire 1st floor.
The open layout includes a spacious kitchen with an adjacent dining area that flows into the great room, ideal for everyday living and entertaining. The kitchen comes equipped with White Shaker Style Cabinets, Quartz countertops, and Stainless-Steel Appliances. The primary suite comes with a Vaulted Ceiling and a private bath which has a 5ft shower, dual bowl vanity, and Walk-In-Closet.
Two additional bedrooms share a full bath nearby. The laundry room is conveniently located upstairs along with a storage and linen closet.
GVL MLS # 1581842
Quick Facts
Time on Site
2 months ago
Property Type
Residential
Year Built
2026
Lot Size
8,276 sqft
Price/Sq.Ft.
$172
HOA Fees
$570/yr
Property Details
Schools
Features & Amenities
Features:
- High Ceilings
- Open Floorplan
- Walk-In Closet(s)
- Countertops – Quartz
- Pantry
Location & Map
Map View
Loading map...
Additional Information
Community
- Gated
- Street Lights
- Pool
- Sidewalks
- Other
- Dog Park
- Walking Trails
Lot & Land
- 1/2 Acre or Less
- Sidewalk
- Few Trees
Tax Information
Interior Details
- Carpet
- Luxury Vinyl
- Trash Compactor
- Dishwasher
- Disposal
- Free-Standing Electric Range
- Microwave
- Gas Water Heater
- Tankless Water Heater
- 1st Floor
- Walk-in
- Electric Dryer Hookup
- Laundry Room
- High Ceilings
- Open Floorplan
- Walk-In Closet(s)
- Countertops – Quartz
- Pantry
Parking & Garage
- Attached
- Concrete
- Garage Door Opener
Exterior Features
- Composition
- Attached
- Concrete
- Garage Door Opener
- Slab
- Patio
- Porch
- Vinyl Siding
H O A & Association
- Pool
- Street Lights
Property Overview
- Two
- Craftsman
Utilities & Systems
- Public Sewer
- Central Air
- Forced Air
- Natural Gas
- Underground Utilities
- Public
Listing Agent Information
The information is being provided by Greater Greenville MLS. Information deemed reliable but not guaranteed. Information is provided for consumers' personal, non-commercial use, and may not be used for any purpose other than the identification of potential properties for purchase. Copyright 2025 Greater Greenville MLS. All Rights Reserved.


