


$429,900
141 Cedar Shoals Way
Simpsonville, SC 29680
About This Property
This Property Has Been Sold
This property sold 9 months ago and is no longer available for purchase.
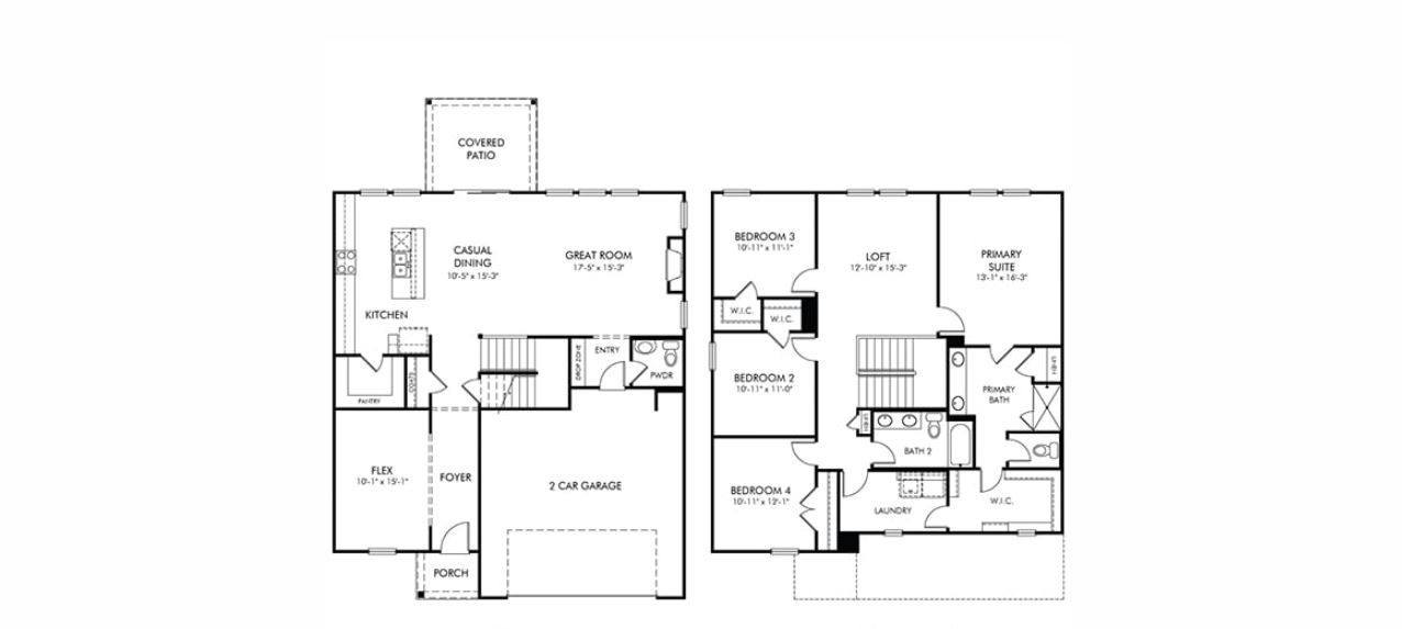
View active listings in Cedar Shoals →Brand new, energy-efficient home available by Jun 2025! Outfit the Dakota's main-level flex space as a home office and skip your commute. In the kitchen, the island overlooks the open living space.
Barnett Boulder cabinets, sage flooring, and Calacatta Aurora Quartza countertops come in our Upscale Rustic. Now selling in the Simpsonville/Piedmont area. Cedar Shoals - Signature Collection is conveniently located near Simpsonville, Mauldin, and Greenville with outdoor parks such as Conestee Park just minutes away.
This community features open-concept energy-efficient floorplans with spacious great rooms, back patios, and luxurious primary suites. Join the interest list today. Each of our homes is built with innovative, energy-efficient features designed to help you enjoy more savings, better health, real comfort and peace of mind.
WUM MLS # 1114568576
Quick Facts
Time on Site
10 months ago
Property Type
Residential
Year Built
2025
Price/Sq.Ft.
$173
Property Details
Schools
Features & Amenities
Location & Map
Map View
Loading map...
Additional Information
Lot & Land
- Level
- OutsideCityLimits
- Subdivision
Community & H O A
- Playground
- Pool
Tax Information
Parking & Garage
- Attached
- Garage
- Driveway
Property Details
Exterior Features
- Architectural
- Shingle
Interior Features
- Carpet
- Tile
- Vinyl
- Dishwasher
- GasOven
- GasRange
- Microwave
- Laundry
- Loft
- Office
- DualSinks
- Fireplace
- HighCeilings
- BathInPrimaryBedroom
- PullDownAtticStairs
- SmoothCeilings
- ShowerOnly
- SolidSurfaceCounters
- UpperLevelPrimary
- WalkInClosets
- Loft
Systems & Utilities
- CentralAir
- Electric
- ForcedAir
- Central
- Electric
- ForcedAir
Listing Agent Information
This information is deemed reliable, but not guaranteed. Neither, the Western Upstate Association of REALTORS®, Inc. or Western Upstate Multiple Listing Service of South Carolina Inc., nor the listing broker, nor their agents or subagents are responsible for the accuracy of the information. The buyer is responsible for verifying all information. This information is provided by the Western Upstate Association of REALTORS®, Inc. and Western Upstate Multiple Listing Service of South Carolina, Inc. for use by its members and is not intended for the use for any other purpose. Information is provided for consumers' personal, non-commercial use, and may not be used for any purpose other than the identification of potential properties for purchase. The data relating to real estate for sale on this Web site comes in part from the Broker Reciprocity Program of the Western Upstate Association of REALTORS®, Inc. and the Western Upstate Multiple Listing Service, Inc.
You Might Also Like...
Interested in selling in Cedar Shoals?

