




$350,000
713 Sportsman Drive
Salisbury, NC 28146
About This Property
This Property Has Been Sold
This property sold 2 years ago and is no longer available for purchase.
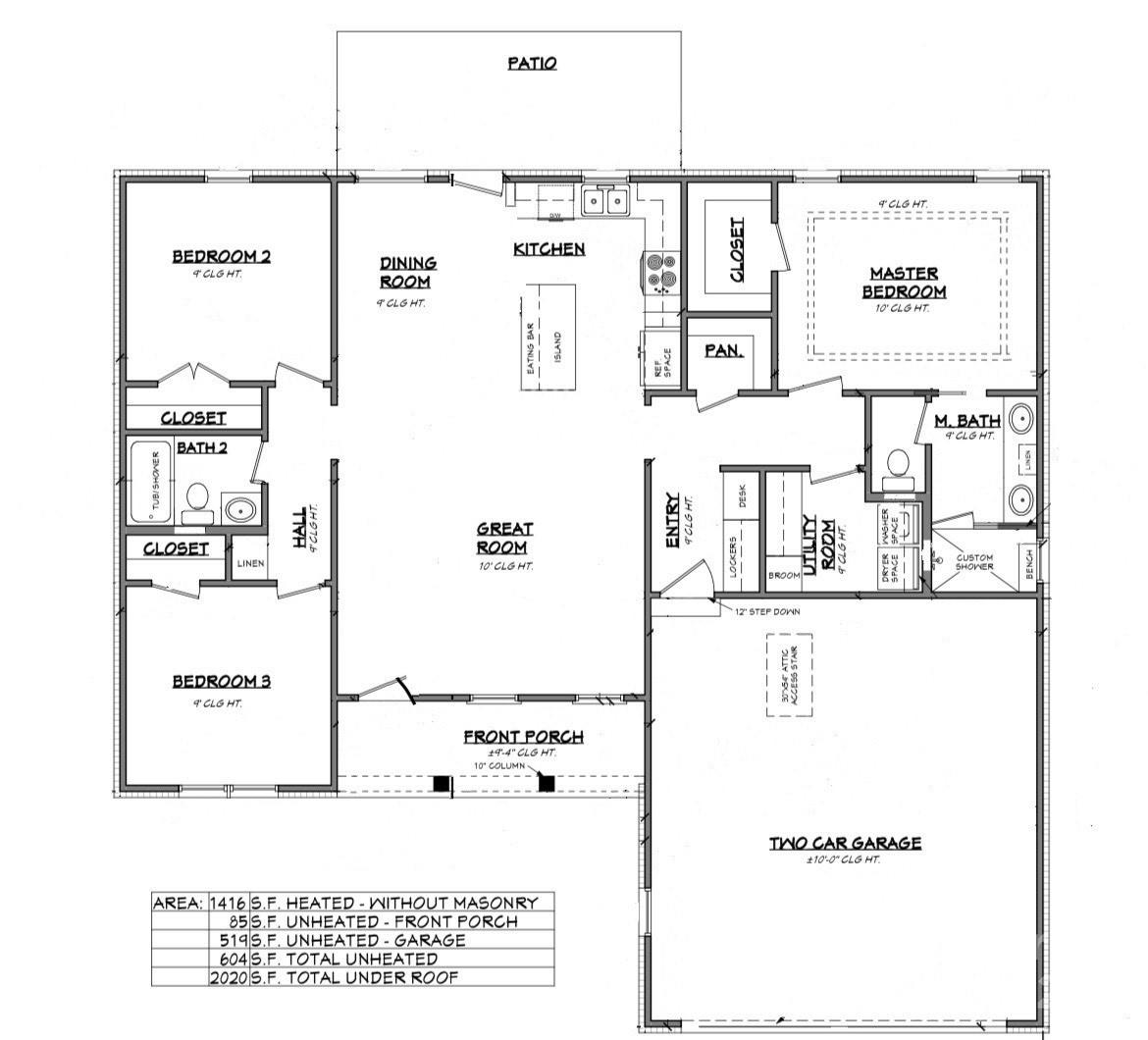
View active listings in Summer Place →**Introducing a stunning new construction nestled on a sprawling one acre lot, offering an enchanting blend of serene woodland vistas and captivating views of the picturesque High Rock Lake. Discover a harmonious fusion of nature and comfort as you enter the open living room adorned with soaring 10-foot ceilings. Immerse yourself in the indulgence of modern finishes, including exquisite LVP flooring, luxurious tall cabinetry with soft-closing features, and opulent granite countertops. Unwind in the elegance of frameless glass showers adorned with custom tiling, showcasing the meticulous craftsmanship synonymous with AC Freeman Construction.
Construction progress photos will be regularly updated.
*Inquire about optional second lot, for community feature access!*
CAR MLS # 117276931
Quick Facts
Time on Site
3 years ago
Property Type
Residential
Year Built
2023
Price/Sq.Ft.
$247
Property Details
Schools
Features & Amenities
Location & Map
Map View
Loading map...
Additional Information
Utilities
- Septic Installed
- Well
Lot And Land
- Views
Agent Contacts
- Palmetto Park Realty Team Fort Mill: 803.548.6123
Interior Details
- Central
- Electric Dryer Hookup
- Laundry Room
Exterior Features
- Vinyl
Parking And Garage
- Driveway
- Attached Garage
- Garage Faces Front
Waterfront And View
- Water
Financial Information
Basement And Foundation
- Slab
Zoning And Restrictions
Square Footage And Levels
- One
Additional C A R Information
IDX information is provided exclusively for consumers' personal, non-commercial use only; it may not be used for any purpose other than to identify prospective properties consumers may be interested in purchasing. Data is deemed reliable but is not guaranteed accurate by the MLS GRID. Use of this site may be subject to an end user license agreement. Based on information submitted to the MLS GRID as of Wed, Dec 6, 2023. All data is obtained from various sources and may not have been verified by broker or MLS GRID. Supplied Open House Information is subject to change without notice. All information should be independently reviewed and verified for accuracy. Properties may or may not be listed by the office/agent presenting the information. Some IDX listings have been excluded from this website. Any use by you of search facilities of data on the site, other than by a consumer looking to purchase real estate, is prohibited. DMCA Notice: Palmetto Park Realty respects the intellectual property rights of others. If you believe that your work has been copied in a way that constitutes copyright infringement, please provide our designated agent with written notice containing the following information: (1) identification of the copyrighted work claimed to have been infringed; (2) identification of the material that is claimed to be infringing; (3) your contact information; (4) a statement that you have a good faith belief that use of the material is not authorized; and (5) a statement that the information in the notification is accurate and you are authorized to act on behalf of the copyright owner. Please send DMCA notices to: [email protected]
You Might Also Like...
Interested in selling in Summer Place?