


$238,025
484 Settlers Grove Lane
Salisbury, NC 28146
About This Property
This Property Has Been Sold
This property sold 6 years ago and is no longer available for purchase.
View active listings in Settlers Grove →Welcome Home to our Carlyle "A" model. This home is currently being built and will be completed July 31, 2020. Come see this award-winning, master on main, floor plan for yourself!
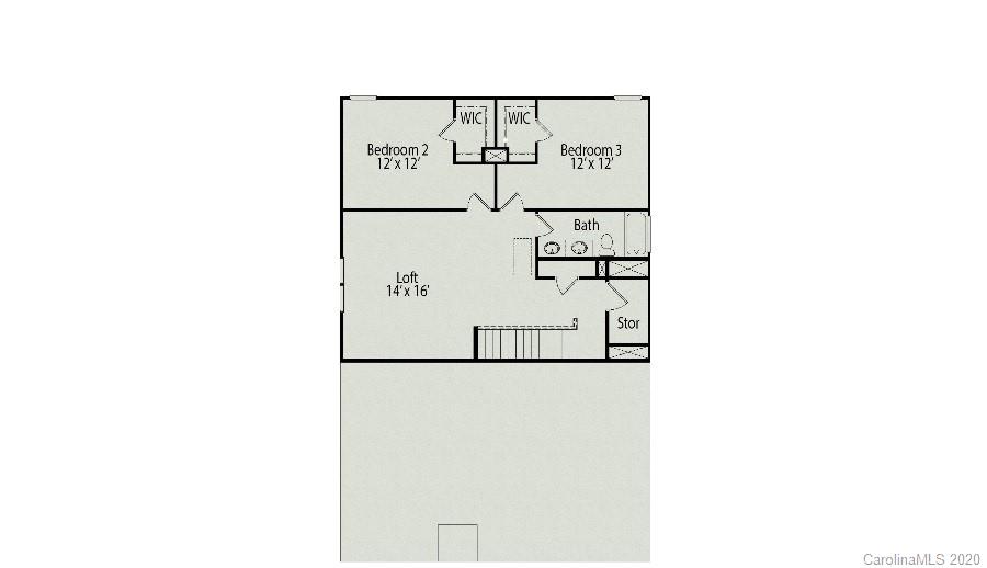
The open floor plan offers a gourmet kitchen with SS appliances, granite counter tops, and upgraded white cabinets. Large master bedroom is tucked away on the main level, with a spa-like bathroom that features a large tiled show and double vanity. Upstairs has two bedrooms, bathroom and a HUGE loft that is perfect for a second living room or office.
$4K towards design and $3K towards closing with preferred lender if under contract by 6/30/2020.
CAR MLS # 65666369
Quick Facts
Time on Site
6 years ago
Property Type
Residential
Year Built
2020
Lot Size
10,454 sqft
Price/Sq.Ft.
$111
Property Details
Schools
Features & Amenities
Features:
- Cable Prewire
Location & Map
Map View
Loading map...
Additional Information
Utilities
- Public Sewer
- City
Lot And Land
Agent Contacts
- Palmetto Park Realty Team Fort Mill: 803.548.6123
Interior Details
- Central
- Forced Air
- Natural Gas
- Zoned
- Carpet
- Tile
- Vinyl
- Electric Dryer Hookup
- Main Level
- Cable Prewire
- Carbon Monoxide Detector(s)
Exterior Features
- Composition
- Stone
- Vinyl
- Covered
- Rear Porch
Parking And Garage
- Attached Garage
Financial Information
Dwelling And Structure
- Traditional
Basement And Foundation
- Slab
Zoning And Restrictions
Square Footage And Levels
- Two
Additional C A R Information
IDX information is provided exclusively for consumers' personal, non-commercial use only; it may not be used for any purpose other than to identify prospective properties consumers may be interested in purchasing. Data is deemed reliable but is not guaranteed accurate by the MLS GRID. Use of this site may be subject to an end user license agreement. Based on information submitted to the MLS GRID as of Fri, Apr 2, 2021. All data is obtained from various sources and may not have been verified by broker or MLS GRID. Supplied Open House Information is subject to change without notice. All information should be independently reviewed and verified for accuracy. Properties may or may not be listed by the office/agent presenting the information. Some IDX listings have been excluded from this website. Any use by you of search facilities of data on the site, other than by a consumer looking to purchase real estate, is prohibited. DMCA Notice: Palmetto Park Realty respects the intellectual property rights of others. If you believe that your work has been copied in a way that constitutes copyright infringement, please provide our designated agent with written notice containing the following information: (1) identification of the copyrighted work claimed to have been infringed; (2) identification of the material that is claimed to be infringing; (3) your contact information; (4) a statement that you have a good faith belief that use of the material is not authorized; and (5) a statement that the information in the notification is accurate and you are authorized to act on behalf of the copyright owner. Please send DMCA notices to: [email protected]
You Might Also Like...
Interested in selling in Settlers Grove?