




$350,990
619 Silver Fir Street
Piedmont, SC 29673
About This Property
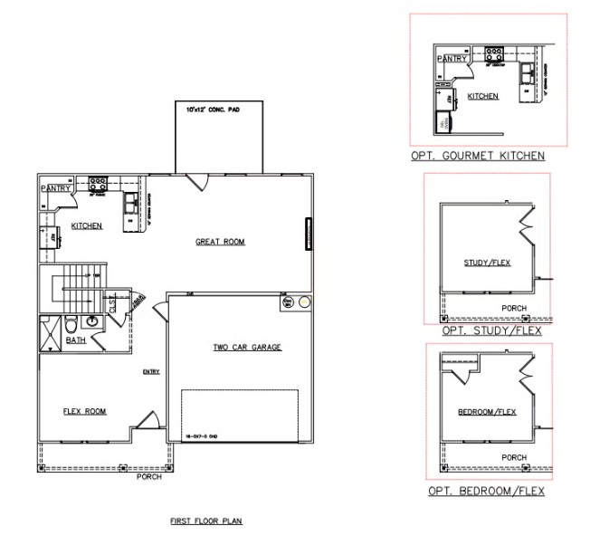
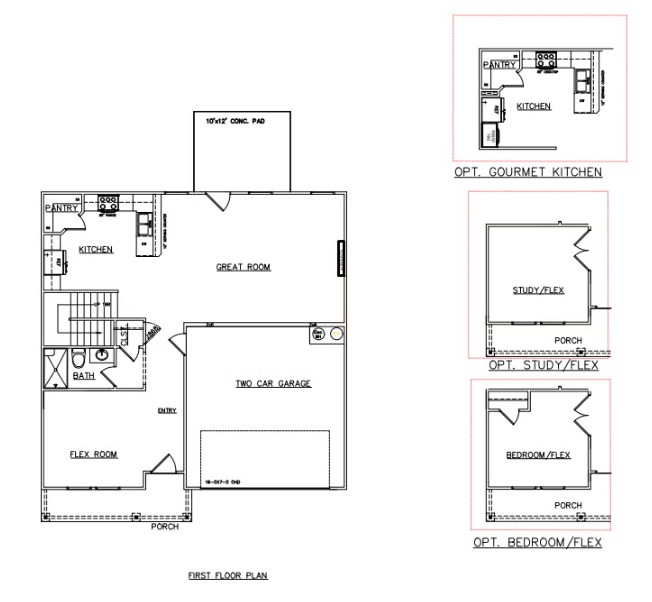
The Jodeco is its open concept, is one of Dream Finders Homes most sought-after plans. Downstairs features a flex room that can be used as an office/study or 5th bedroom. The thoughtfully arranged kitchen offers loads of cabinet and granite counter space, walk-in pantry, stainless steel sink with pull-down sprayer faucet, a large island.
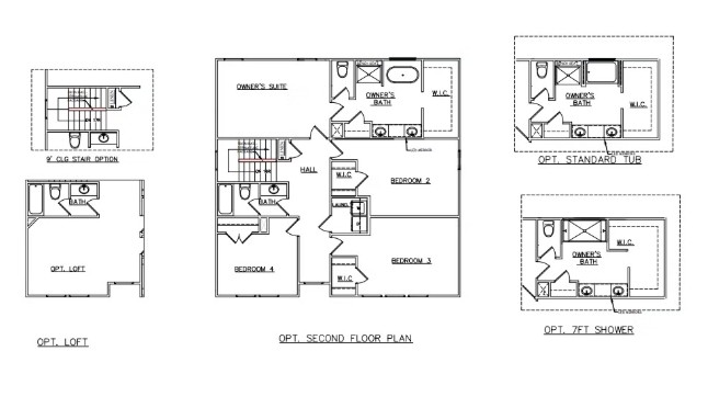
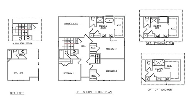
The owner's suite has a walk-in closet, full bath with double sinks, large separate tiled shower with built-in bench, and LVP flooring. Granite counters in all bathrooms. Enjoy your 10x12 covered patio overlooking your backyard.
1-yrBuilder's & 8-yr Structural New Home Warranty. USDA 100% financing available.
WUM MLS # 1149496561
Quick Facts
Time on Site
3 months ago
Property Type
Residential
Year Built
2026
Lot Size
6,534 sqft
Property Details
Schools
Features & Amenities
Location & Map
Map View
Loading map...
Additional Information
Lot & Land
- Level
- OutsideCityLimits
- Subdivision
Community & H O A
- CommonGroundsArea
- Playground
- Sidewalks
Tax Information
Parking & Garage
- Attached
- Garage
- Driveway
Property Details
Exterior Features
- FrontPorch
- Patio
- Brick
- CementSiding
- VinylSiding
- Porch
- Patio
Interior Features
- Carpet
- LuxuryVinylPlank
- Dishwasher
- ElectricOven
- ElectricRange
- ElectricWaterHeater
- Disposal
- Microwave
- PlumbedForIceMaker
- Laundry
- Office
- DualSinks
- GraniteCounters
- HighCeilings
- BathInPrimaryBedroom
- PullDownAtticStairs
- SmoothCeilings
- ShowerOnly
- CableTv
- UpperLevelPrimary
- WalkInClosets
- WalkInShower
Systems & Utilities
- CentralAir
- Electric
- Central
- Electric
- ElectricityAvailable
- SewerAvailable
- WaterAvailable
- CableAvailable
- UndergroundUtilities
Listing Agent Information
This information is deemed reliable, but not guaranteed. Neither, the Western Upstate Association of REALTORS®, Inc. or Western Upstate Multiple Listing Service of South Carolina Inc., nor the listing broker, nor their agents or subagents are responsible for the accuracy of the information. The buyer is responsible for verifying all information. This information is provided by the Western Upstate Association of REALTORS®, Inc. and Western Upstate Multiple Listing Service of South Carolina, Inc. for use by its members and is not intended for the use for any other purpose. Information is provided for consumers' personal, non-commercial use, and may not be used for any purpose other than the identification of potential properties for purchase. The data relating to real estate for sale on this Web site comes in part from the Broker Reciprocity Program of the Western Upstate Association of REALTORS®, Inc. and the Western Upstate Multiple Listing Service, Inc.

