




$309,040
614 Silver Fir Street
Piedmont, SC 29673
About This Property
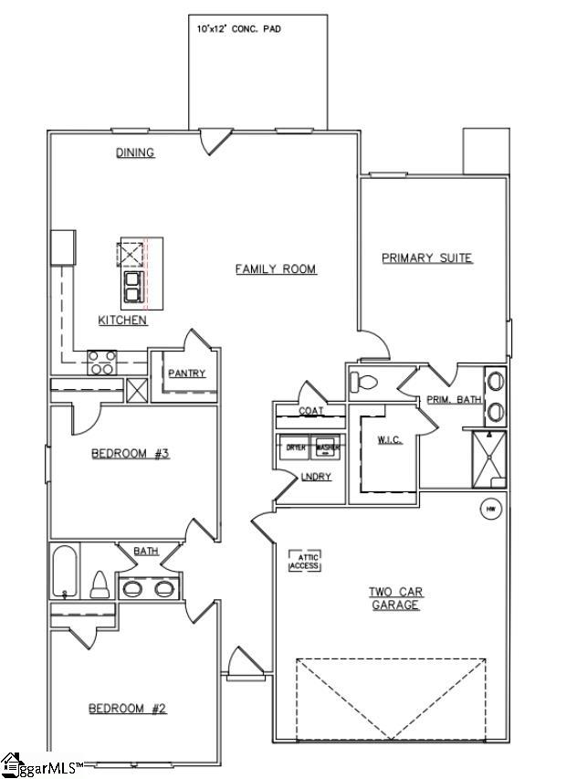
The Burton plan provides everything you need, all on one level. The flow of this home is wonderful. Two secondary bedrooms and full bath towards the front, with the master suite tucked away towards the back.
The open family room features loads of natural light. The kitchen has wonderful countertop and cabinet space. If that isn’t enough, the large pantry will certainly do the trick.
All countertops in the kitchen and both bathrooms are granite. The kitchen also has an island for additional sitting. The master suite’s full bath has a large tiled shower.
GVL MLS # 1583172
Quick Facts
Time on Site
19 days ago
Property Type
Residential
Year Built
2025
Lot Size
6,098 sqft
Price/Sq.Ft.
$187
HOA Fees
$500/yr
Property Details
Schools
Features & Amenities
Features:
- High Ceilings
- Ceiling Smooth
- Granite Counters
- Walk-In Closet(s)
- Pantry
Location & Map
Map View
Loading map...
Additional Information
Community
- Street Lights
- Playground
- Sidewalks
Lot & Land
- 1/2 Acre or Less
Tax Information
Interior Details
- Carpet
- Laminate
- Dishwasher
- Other
- Electric Cooktop
- Electric Oven
- Microwave
- Electric Water Heater
- 1st Floor
- Laundry Closet
- Walk-in
- Electric Dryer Hookup
- Washer Hookup
- Laundry Room
- High Ceilings
- Ceiling Smooth
- Granite Counters
- Walk-In Closet(s)
- Pantry
Parking & Garage
- Attached
- Concrete
- Driveway
Exterior Features
- Composition
- Attached
- Concrete
- Driveway
- Slab
- Patio
- Brick Veneer
- Hardboard Siding
- Vinyl Siding
H O A & Association
- Street Lights
Property Overview
- One
- Ranch
- Craftsman
Utilities & Systems
- Public Sewer
- Central Air
- Electric
- Heat Pump
- Electric
- Forced Air
- Heat Pump
- Public
Listing Agent Information
The information is being provided by Greater Greenville MLS. Information deemed reliable but not guaranteed. Information is provided for consumers' personal, non-commercial use, and may not be used for any purpose other than the identification of potential properties for purchase. Copyright 2025 Greater Greenville MLS. All Rights Reserved.


