


$349,900
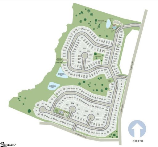
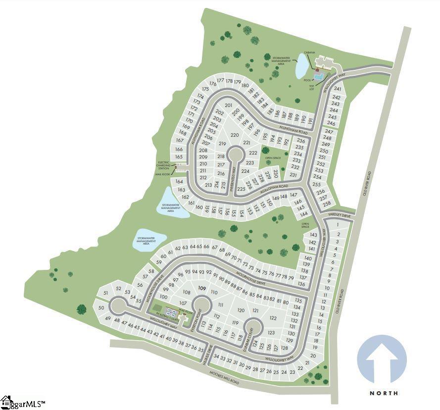
343 Allingham Road
Piedmont, SC 29673
About This Property
Brand new, energy-efficient home available by Jan 2026! Purpose the Newport's sizeable flex space into the media room you’ve always wanted. A walk-in pantry and large kitchen island make it easy to feed a group.
Tray ceilings in the primary suite lend an elegant touch. Now selling in Piedmont. Riverwood Farm offers energy-efficient homes with outdoor covered patios, open-concept great rooms, and luxurious primary suites.
Nestled between Greenville and Anderson, this community offers quick commutes to shopping, dining, and entertainment. Homeowners will enjoy fantastic onsite amenities such as a pool and cabana, pickleball courts, a playground, and more. Join the interest list today.
GVL MLS # 1577874
Quick Facts
Time on Site
3 months ago
Property Type
Residential
Year Built
2026
Lot Size
6,969 sqft
Price/Sq.Ft.
$191
HOA Fees
$750/yr
Property Details
Schools
Features & Amenities
Features:
- High Ceilings
- Ceiling Smooth
- Countertops-Solid Surface
- Open Floorplan
- Walk-In Closet(s)
- Pantry
Location & Map
Map View
Loading map...
Additional Information
Community
- Playground
- Pool
Lot & Land
- 1/2 Acre or Less
Tax Information
Interior Details
- Ceramic Tile
- Vinyl
- Dishwasher
- Disposal
- Dryer
- Refrigerator
- Washer
- Gas Oven
- Microwave
- Gas Water Heater
- Tankless Water Heater
- 1st Floor
- Walk-in
- Laundry Room
- High Ceilings
- Ceiling Smooth
- Countertops-Solid Surface
- Open Floorplan
- Walk-In Closet(s)
- Pantry
- Gas Log
Parking & Garage
- Attached
- Paved
Exterior Features
- Architectural
- Attached
- Paved
- Slab
- Patio
- Hardboard Siding
H O A & Association
- Other/See Remarks
Property Overview
- One
- Craftsman
Utilities & Systems
- Public Sewer
- Central Air
- Electric
- Electric
- Forced Air
- Public
Listing Agent Information
The information is being provided by Greater Greenville MLS. Information deemed reliable but not guaranteed. Information is provided for consumers' personal, non-commercial use, and may not be used for any purpose other than the identification of potential properties for purchase. Copyright 2025 Greater Greenville MLS. All Rights Reserved.


