


$364,900
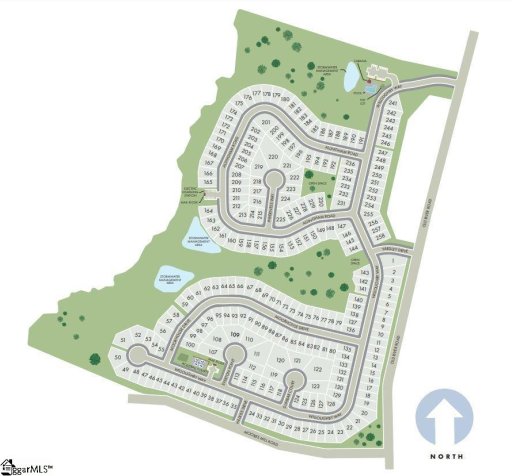
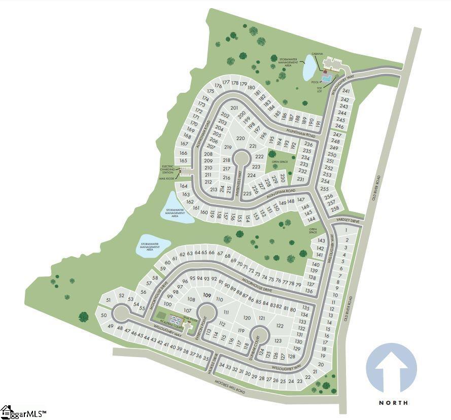
338 Allingham Road
Piedmont, SC 29673
About This Property
Brand new, energy-efficient home available by Dec 2025! Purpose the Newport's sizeable flex space into the media room you’ve always wanted. Tray ceilings in the primary suite lend an elegant touch.
Barnett Harbor cabinets and Save Woodlands Carmen EVP flooring come in our Classic White package. Now selling in Piedmont. Riverwood Farm offers energy-efficient homes with outdoor covered patios, open-concept great rooms, and luxurious primary suites.
Nestled between Greenville and Anderson, this community offers quick commutes to shopping, dining, and entertainment. Homeowners will enjoy fantastic onsite amenities such as a pool and cabana, pickleball courts, a playground, and more. Join the interest list today.
GVL MLS # 1575832
Quick Facts
Time on Site
4 months ago
Property Type
Residential
Year Built
2025
Lot Size
6,969 sqft
Price/Sq.Ft.
$199
HOA Fees
$750/yr
Property Details
Schools
Features & Amenities
Features:
- High Ceilings
- Ceiling Smooth
- Countertops-Solid Surface
- Open Floorplan
- Walk-In Closet(s)
- Pantry
Location & Map
Map View
Loading map...
Additional Information
Community
- Playground
- Pool
Lot & Land
- 1/2 Acre or Less
Tax Information
Interior Details
- Ceramic Tile
- Vinyl
- Dishwasher
- Disposal
- Dryer
- Refrigerator
- Washer
- Gas Oven
- Microwave
- Gas Water Heater
- Tankless Water Heater
- 1st Floor
- Walk-in
- Laundry Room
- High Ceilings
- Ceiling Smooth
- Countertops-Solid Surface
- Open Floorplan
- Walk-In Closet(s)
- Pantry
- Gas Log
Parking & Garage
- Attached
- Paved
Exterior Features
- Architectural
- Attached
- Paved
- Slab
- Patio
- Hardboard Siding
H O A & Association
- Other/See Remarks
Property Overview
- One
- Craftsman
Utilities & Systems
- Public Sewer
- Central Air
- Electric
- Electric
- Forced Air
- Public
Listing Agent Information
The information is being provided by Greater Greenville MLS. Information deemed reliable but not guaranteed. Information is provided for consumers' personal, non-commercial use, and may not be used for any purpose other than the identification of potential properties for purchase. Copyright 2025 Greater Greenville MLS. All Rights Reserved.


