



$304,900
307 Shortleaf Lane
Pendleton, SC 29670
About This Property
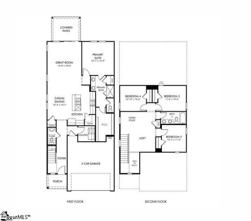
Brand new, energy-efficient home available by Apr 2026! Unwind at the end of the day in the private first-floor primary suite, complete with dual sinks and an impressive walk-in closet. Pebble cabinets with white quartz countertops, EVP flooring, and carpet in our Fresh Package.
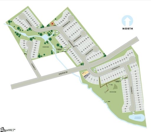
Village at White Pine is located just off I-85 and Hwy 76 in Anderson County. Explore shopping, restaurants, and entertainment in Anderson and Clemson. There is no shortage of activities for the outdoor lover.
Spend the day hiking and boating at Lake Hartwell. Take advantage of academic, cultural, and social experiences at Clemson University and Anderson University. Village at White Pine offers the perfect blend of convenience and comfort.
GVL MLS # 1584526
Quick Facts
Time on Site
2 months ago
Property Type
Residential
Year Built
2026
Lot Size
4,791 sqft
Price/Sq.Ft.
$151
HOA Fees
$850/yr
Property Details
Schools
Features & Amenities
Features:
- High Ceilings
- Ceiling Smooth
- Granite Counters
- Countertops-Solid Surface
- Walk-In Closet(s)
- Countertops – Quartz
- Pantry
Location & Map
Map View
Loading map...
Additional Information
Community
- Common Areas
- Playground
- Other
Lot & Land
- 1/2 Acre or Less
Tax Information
Interior Details
- Carpet
- Ceramic Tile
- Vinyl
- Dishwasher
- Disposal
- Free-Standing Gas Range
- Gas Oven
- Microwave
- Gas Water Heater
- Tankless Water Heater
- 1st Floor
- Walk-in
- Electric Dryer Hookup
- High Ceilings
- Ceiling Smooth
- Granite Counters
- Countertops-Solid Surface
- Walk-In Closet(s)
- Countertops – Quartz
- Pantry
Parking & Garage
- Attached
- Paved
Exterior Features
- Architectural
- Attached
- Paved
- Slab
- Patio
- Front Porch
- Brick Veneer
- Stone
- Vinyl Siding
H O A & Association
Property Overview
- Two
- Craftsman
Utilities & Systems
- Public Sewer
- Central Air
- Electric
- Electric
- Forced Air
- Underground Utilities
- Cable Available
- Public
Listing Agent Information
The information is being provided by Greater Greenville MLS. Information deemed reliable but not guaranteed. Information is provided for consumers' personal, non-commercial use, and may not be used for any purpose other than the identification of potential properties for purchase. Copyright 2025 Greater Greenville MLS. All Rights Reserved.


