




$354,990
New 4 Bed Home in Moore w/ Pool Access & Top-Rated District 5 Schools
Moore, SC 29369
About This Property
This Property Has Been Sold
This property sold 5 months ago and is no longer available for purchase.
View active listings in Iris Meadows →Make a splash by summer! Enjoy first-class amenities, including a community pool and relaxing cabana. Welcome to Iris Meadows, where your dreams of summer fun and luxury living will come to life!
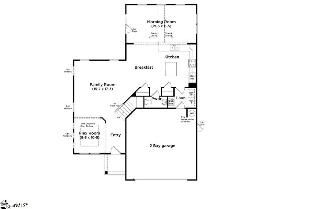
Entering The Cameron from your 2 car garage or front porch, you have your amazing 2 story foyer with a flex room adjacent to the entry featuring trey ceilings that would make a great home office or extra living space. The entry hall continues into your open kitchen and living area with high ceilings and large windows for tons of natural light. Features of the kitchen include a center island for additional prep space and seating, beautiful light brown cabinetry, Quartz countertops, tiled backsplash, under cabinet lighting, farmhouse sink and upgraded stainless steel gas appliances.
The breakfast area leads into the morning room and out to the back patio overlooking your backyard. The laundry room and powder room complete the main level. Up the Oak staircase are four bedrooms including the spacious Primary Suite with double vanities, generous walk in closet and beautiful tiled shower with seat and glass door.
GVL MLS # 1561900
Quick Facts
Time on Site
9 months ago
Property Type
Residential
Year Built
2025
Lot Size
6,969 sqft
Price/Sq.Ft.
$145
HOA Fees
$525/yr
Property Details
Schools
Features & Amenities
Features:
- 2 Story Foyer
- High Ceilings
- Ceiling Fan(s)
- Vaulted Ceiling(s)
- Ceiling Smooth
- Tray Ceiling(s)
- Open Floorplan
- Walk-In Closet(s)
- Countertops – Quartz
- Pantry
Location & Map
Map View
Loading map...
Additional Information
Community
- Street Lights
- Pool
Lot & Land
- 1/2 Acre or Less
Tax Information
Interior Details
- Carpet
- Luxury Vinyl
- Dishwasher
- Disposal
- Free-Standing Gas Range
- Self Cleaning Oven
- Gas Oven
- Microwave
- Gas Water Heater
- 1st Floor
- Walk-in
- Electric Dryer Hookup
- Laundry Room
- 2 Story Foyer
- High Ceilings
- Ceiling Fan(s)
- Vaulted Ceiling(s)
- Ceiling Smooth
- Tray Ceiling(s)
- Open Floorplan
- Walk-In Closet(s)
- Countertops – Quartz
- Pantry
Parking & Garage
- Attached
- Paved
- Garage Door Opener
Exterior Features
- Architectural
- Attached
- Paved
- Garage Door Opener
- Slab
- Patio
- Front Porch
- Vinyl Siding
H O A & Association
- Pool
- Street Lights
Property Overview
- One
- Craftsman
Utilities & Systems
- Public Sewer
- Electric
- Natural Gas
- Cable Available
- Public
Listing Agent Information
The information is being provided by Greater Greenville MLS. Information deemed reliable but not guaranteed. Information is provided for consumers' personal, non-commercial use, and may not be used for any purpose other than the identification of potential properties for purchase. Copyright 2025 Greater Greenville MLS. All Rights Reserved.
You Might Also Like...
Interested in selling in Iris Meadows?


