




$368,289
7080 Juneberry Way
Maiden, NC 28650
About This Property
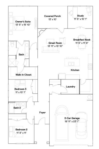
This spacious single-story home blends comfort and style with an open-concept layout connecting the kitchen, breakfast area, and inviting Great Room, which opens to a covered screened-in porch—perfect for indoor-outdoor living. A private study offers flexible space for work or relaxation, while the owner’s suite is tucked in the back of the home for added privacy. Enjoy beautiful finishes throughout, including quartz or granite countertops, subway tile backsplash, ceramic tile, and luxury vinyl plank flooring.
Located in Shannon Woods near Maiden and bordering Denver, this thoughtfully designed community features a pool, playground, and fitness center. Enjoy small-town charm with easy access to shopping, dining, and entertainment—just 30 minutes to Uptown Charlotte and the airport, and only 3 miles to Lake Norman.
CAR MLS # 296563365
Quick Facts
Time on Site
2 months ago
Property Type
Residential
Year Built
2026
Price/Sq.Ft.
$198
Property Details
Schools
Features & Amenities
Features:
- Attic Stairs Pulldown
- Kitchen Island
- Open Floorplan
- Pantry
- Walk-In Closet(s)
Location & Map
Map View
Loading map...
Additional Information
Utilities
- Public Sewer
- Cable Available
- Electricity Connected
- Natural Gas
- Underground Utilities
- City
Lot And Land
Agent Contacts
- Palmetto Park Realty Team Fort Mill: 803.548.6123
Interior Details
- Central
- Natural Gas
- Zoned
- Carpet
- Tile
- Vinyl
- Insulated Window(s)
- Electric Dryer Hookup
- Laundry Room
- Washer Hookup
- Attic Stairs Pulldown
- Kitchen Island
- Open Floorplan
- Pantry
- Walk-In Closet(s)
- Carbon Monoxide Detector(s)
- Smoke Detector(s)
Exterior Features
- Fiberglass
- Stone Veneer
- Vinyl
- Covered
- Patio
- Rear Porch
- Screened
Parking And Garage
- Driveway
- Attached Garage
- Garage Faces Front
Financial Information
Dwelling And Structure
- Ranch
- Traditional
Basement And Foundation
- Slab
Zoning And Restrictions
Square Footage And Levels
- One
Additional C A R Information
IDX information is provided exclusively for consumers' personal, non-commercial use only; it may not be used for any purpose other than to identify prospective properties consumers may be interested in purchasing. Data is deemed reliable but is not guaranteed accurate by the MLS GRID. Use of this site may be subject to an end user license agreement. Based on information submitted to the MLS GRID as of Mon, May 11, 2026. All data is obtained from various sources and may not have been verified by broker or MLS GRID. Supplied Open House Information is subject to change without notice. All information should be independently reviewed and verified for accuracy. Properties may or may not be listed by the office/agent presenting the information. Some IDX listings have been excluded from this website. Any use by you of search facilities of data on the site, other than by a consumer looking to purchase real estate, is prohibited. DMCA Notice: Palmetto Park Realty respects the intellectual property rights of others. If you believe that your work has been copied in a way that constitutes copyright infringement, please provide our designated agent with written notice containing the following information: (1) identification of the copyrighted work claimed to have been infringed; (2) identification of the material that is claimed to be infringing; (3) your contact information; (4) a statement that you have a good faith belief that use of the material is not authorized; and (5) a statement that the information in the notification is accurate and you are authorized to act on behalf of the copyright owner. Please send DMCA notices to: [email protected]