




$257,575
1205 Paramount Drive Lot # 35
Lyman, SC 29365
About This Property
This Property Has Been Sold
This property sold 4 years ago and is no longer available for purchase.
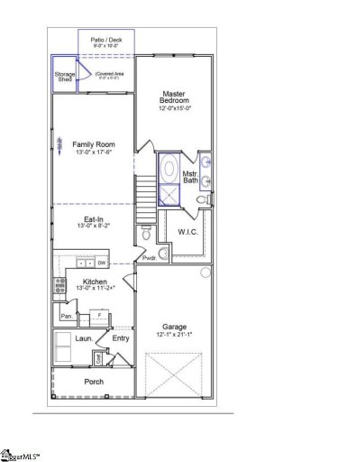
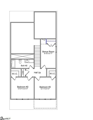
View active listings in Lexington Place →The Evans floor plan located in the Brand New community Lexington Place. 3 bedrooms, 2.5 baths with an additional Bonus room this home upon completion will have all the finer details that you are looking for in you new home.
Imagine with me, walking in this home, with Luxury Vinyl flooring, upgraded white cabinetry, Granite countertops, & Stainless steel appliances. Over looking the spacious family room. the master bedroom is also on the main floor boasting its luxury vinyl floors that lead into the bathroom & walk in closet.
the bathroom boast a dual raised vanity, a garden tub with separate shower. Step with me outside and be thrilled to know that you have a covered porch with a patio deck area and a storage shed with electricity!! Now upstairs, Includes 2 additional bedrooms and the bonus room and the additional full bathroom with a garden tub shower combination.
GVL MLS # 1447974
Quick Facts
Time on Site
5 years ago
Property Type
Residential
Year Built
2021
Lot Size
8,712 sqft
HOA Fees
$340/yr
Property Details
Schools
Features & Amenities
Features:
- Vaulted Ceiling(s)
- Ceiling Smooth
- Granite Counters
- Countertops-Solid Surface
- Open Floorplan
- Soaking Tub
- Walk-In Closet(s)
- Pantry
Location & Map
Map View
Loading map...
Additional Information
Community
- Street Lights
- Sidewalks
Lot & Land
- 1/2 Acre or Less
- Corner Lot
Tax Information
Interior Details
- Carpet
- Vinyl
- Cooktop
- Dishwasher
- Disposal
- Self Cleaning Oven
- Electric Cooktop
- Electric Oven
- Microwave
- Electric Water Heater
- 1st Floor
- Walk-in
- Electric Dryer Hookup
- Vaulted Ceiling(s)
- Ceiling Smooth
- Granite Counters
- Countertops-Solid Surface
- Open Floorplan
- Soaking Tub
- Walk-In Closet(s)
- Pantry
Parking & Garage
- Attached
- Paved
- Garage Door Opener
Exterior Features
- Composition
- Attached
- Paved
- Garage Door Opener
- Slab
- Deck
- Patio
- Front Porch
- Porch
- Brick Veneer
- Vinyl Siding
H O A & Association
Property Overview
- Two
- Traditional
Utilities & Systems
- Public Sewer
- Central Air
- Electric
- Electric
- Forced Air
- Cable Available
- Public
Listing Agent Information
The information is being provided by Greater Greenville MLS. Information deemed reliable but not guaranteed. Information is provided for consumers' personal, non-commercial use, and may not be used for any purpose other than the identification of potential properties for purchase. Copyright 2025 Greater Greenville MLS. All Rights Reserved.
You Might Also Like...
Interested in selling in Lexington Place?

