




$612,990
146 Clubside Drive
Lexington, SC 29072
About This Property
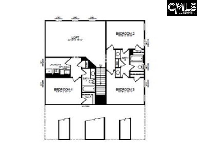
The Vanderhorst is a stunning two-story, five-bedroom, 4 bath home with a huge rocking chair front porch, first-floor primary bedroom, formal dining room, a first-floor guest suite with a full bath, designer kitchen with island, large pantry, separate butler's pantry, and a covered rear porch. Upstairs are three oversized secondary bedrooms, including a Jack-and-Jill bath between bedrooms two and three, plus a bonus room. This home has a two-car detached garage.
Disclaimer: CMLS has not reviewed and, therefore, does not endorse vendors who may appear in listings.
COL MLS # 616590
Quick Facts
Time on Site
7 months ago
Property Type
Residential
Year Built
2025
Price/Sq.Ft.
$191
Property Details
Schools
Features & Amenities
Location & Map
Map View
Loading map...
Additional Information
Fireplace
Lot & Land
Room Details
- Island
- Pantry
- Backsplash-Tiled
- Counter Tops-Quartz
- Floors-Luxury Vinyl Plank
- Fireplace
- Ceiling Fan
- Floors-Luxury Vinyl Plank
- Bonus-Finished
- In Law Suite
- Ceilings-Tray
- Butlers Pantry
- Floors-Luxury Vinyl Plank
Miscellaneous
- Recreation Facility
- Community Pool
Primary Suite
- Double Vanity
- Bath-Private
- Closet-Walk in
- Ceilings-Tray
- Separate Water Closet
Interior Details
- Dishwasher
- Disposal
- Microwave Built In
- Tankless H20
- Gas Water Heater
Parking & Garage
Exterior Features
H O A & Association
- Clubhouse
- Playground
- Pool
Property Overview
Utilities & Systems
Listing Agent Information
Details provided by Consolidated MLS and may not match the public record. Learn more. The information is being provided by Consolidated Multiple Listing Service, Inc. Information deemed reliable but not guaranteed. Information is provided for consumers' personal, non-commercial use, and may not be used for any purpose other than the identification of potential properties for purchase. © 2025 Consolidated Multiple Listing Service, Inc. All Rights Reserved.


