




$180,999
3094 Whispering Willow Court
Inman, SC 29349
About This Property
This Property Has Been Sold
This property sold 6 months ago and is no longer available for purchase.
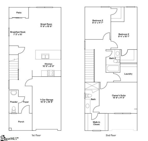
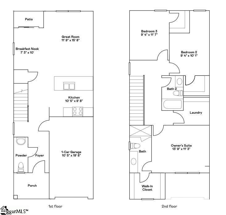
View active listings in The Maple →The Magnolia floorplan at The Maple in Inman, SC. We are thrilled to introduce you to the Magnolia floorplan, which boasts a generous 1405 square feet of living space. You will have a 2 car parking pad, and 1 car garage.
As you step inside, you'll be greeted by an open-concept first floor featuring a spacious great room with vinyl flooring that seamlessly flows into your main kitchen and breakfast area. The kitchen is a chef's delight, complete with quartz countertops, a stylish tile backsplash, and modern stainless-steel appliances. Imagine spending tranquil afternoons on your back porch, which comes with vinyl privacy fences for that added sense of seclusion and peace.
Heading upstairs, you'll discover a luxurious primary bedroom equipped with a dual vanity sink, a walk-in shower, and a spacious walk-in closet. Home also features a tankless water heater. The upper floor is also home to two additional bedrooms, a full bath, and a conveniently located laundry room, ensuring all your needs are met.
GVL MLS # 1571472
Quick Facts
Time on Site
7 months ago
Property Type
Residential
Year Built
2025
Lot Size
7,840 sqft
Price/Sq.Ft.
$129
HOA Fees
$160/mo
Property Details
Schools
Features & Amenities
Features:
- Ceiling Smooth
- Open Floorplan
- Countertops-Other
- Countertops – Quartz
- Pantry
Location & Map
Map View
Loading map...
Additional Information
Community
- Common Areas
- Street Lights
- Pool
Lot & Land
- 1/2 Acre or Less
Tax Information
Interior Details
- Carpet
- Laminate
- Dishwasher
- Disposal
- Free-Standing Gas Range
- Microwave
- Electric Water Heater
- 2nd Floor
- Walk-in
- Electric Dryer Hookup
- Laundry Room
- Ceiling Smooth
- Open Floorplan
- Countertops-Other
- Countertops – Quartz
- Pantry
Parking & Garage
- Attached
- Paved
- Garage Door Opener
Exterior Features
- Composition
- Attached
- Paved
- Garage Door Opener
- Slab
- Patio
- Vinyl Siding
H O A & Association
Property Overview
- Two
- Craftsman
Utilities & Systems
- Central Air
- Electric
- Forced Air
- Natural Gas
- Sewer Available
- Public
Listing Agent Information
The information is being provided by Greater Greenville MLS. Information deemed reliable but not guaranteed. Information is provided for consumers' personal, non-commercial use, and may not be used for any purpose other than the identification of potential properties for purchase. Copyright 2025 Greater Greenville MLS. All Rights Reserved.
You Might Also Like...
Interested in selling in The Maple?


