




$259,949
1467 Cattleman Acres Drive
Inman, SC 29349
About This Property
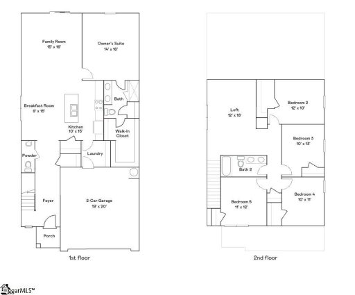
The Emerson plan at The Maple in Inman, SC, is a dream family home. With 5 bedrooms and 2.5 bathrooms, this spacious two-story design offers an open, airy layout perfect for modern living.
The heart of the home is the gourmet kitchen with a large center island, perfect for family meals and gatherings. The cozy family room flows seamlessly into the breakfast area, creating a warm, inviting space. The owner's suite on the main floor offers a private retreat, while upstairs features a versatile loft and four spacious bedrooms, three with walk-in closets, providing room for everyone to grow and thrive.
It's the ideal home for making lasting memories with your loved ones. It's ideal for families seeking a peaceful neighborhood with convenient connections to Greenville and Spartanburg.
GVL MLS # 1588499
Quick Facts
Time on Site
14 days ago
Property Type
Residential
Year Built
2025
Lot Size
7,840 sqft
Price/Sq.Ft.
$113
HOA Fees
$395/yr
Property Details
Schools
Features & Amenities
Features:
- Ceiling Smooth
- Open Floorplan
- Countertops-Other
- Countertops – Quartz
- Pantry
Location & Map
Map View
Loading map...
Additional Information
Community
- Common Areas
- Street Lights
- Playground
- Dog Park
- Walking Trails
Lot & Land
- 1/2 Acre or Less
Tax Information
Interior Details
- Carpet
- Laminate
- Dishwasher
- Disposal
- Free-Standing Gas Range
- Microwave
- Electric Water Heater
- 2nd Floor
- Walk-in
- Electric Dryer Hookup
- Laundry Room
- Ceiling Smooth
- Open Floorplan
- Countertops-Other
- Countertops – Quartz
- Pantry
Parking & Garage
- Attached
- Paved
- Garage Door Opener
Exterior Features
- Composition
- Attached
- Paved
- Garage Door Opener
- Slab
- Patio
- Vinyl Siding
H O A & Association
Property Overview
- Two
- Craftsman
Utilities & Systems
- Central Air
- Forced Air
- Natural Gas
- Sewer Available
- Public
Listing Agent Information
The information is being provided by Greater Greenville MLS. Information deemed reliable but not guaranteed. Information is provided for consumers' personal, non-commercial use, and may not be used for any purpose other than the identification of potential properties for purchase. Copyright 2025 Greater Greenville MLS. All Rights Reserved.

