




$309,499
1459 Cattleman Acres Drive
About This Property
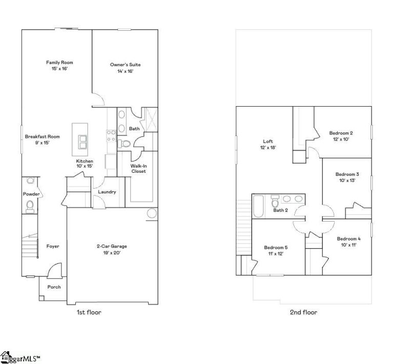
The Frost floorplan at The Maple in Inman, SC, is the perfect home for a growing family. With 5 bedrooms and 3 bathrooms, this spacious two-story design provides room for everyone to thrive. The first floor boasts an open layout, with the family room, kitchen, and breakfast area flowing together to create a warm, inviting space for daily living and entertaining.
A secluded secondary bedroom is perfect for guests, along with a convenient two-car garage. Upstairs, a versatile flex room offers extra living space, while four bedrooms, including a large owner’s suite, provide comfort and privacy. The Frost floorplan combines style, function, and space for the entire family to enjoy.
It's the ideal home for making lasting memories with your loved ones. It's ideal for families seeking a peaceful neighborhood with convenient connections to Greenville and Spartanburg.
Quick Facts
Time on Site
3 weeks ago
Property Type
Residential
Year Built
2025
Lot Size
7,840 sqft
Price/Sq.Ft.
$120
Property Details
Schools
Features & Amenities
Location & Map
Map View
Loading map...
Additional Information
Community
- Common Areas
- Lights
- Pool
Lot & Land
Primary Suite
- Double Sink
- Full Bath
- Primary on 2nd Lvl
- Shower Only
- Walk-in Closet
Specialty Rooms
- Laundry
- Loft
Interior Details
- Carpet
- Laminate Flooring
- Dishwasher
- Disposal
- Stand Alone Range-Gas
- Microwave-Built In
- 2nd Floor
- Walk-in
- Dryer - Electric Hookup
- Ceiling Smooth
- Open Floor Plan
- Smoke Detector
- Countertops-Other
- Countertops - Quartz
- Pantry - Walk In
Parking & Garage
- Door Opener
- Attached Garage 2 Cars
Exterior Features
- Tilt Out Windows
- Vinyl/Aluminum Trim
H O A & Association
Property Overview
Utilities & Systems
- Central Forced
- Electric
- Forced Air
- Natural Gas
Listing Agent Information
The information is being provided by Greater Greenville MLS. Information deemed reliable but not guaranteed. Information is provided for consumers' personal, non-commercial use, and may not be used for any purpose other than the identification of potential properties for purchase. Copyright 2025 Greater Greenville MLS. All Rights Reserved.
