




$196,999
1338 Cattleman Acres Drive
Inman, SC 29349
About This Property
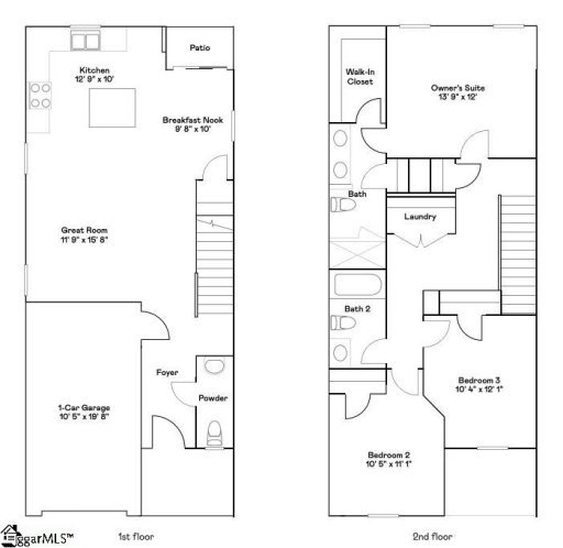
The Chestnut floorplan at The Maple in Inman, SC. We are excited to introduce you to the Chestnut Floorplan – a delightful 3-bedroom, 2.5-bathroom, 1423 square foot, 2-story townhouse that epitomizes modern craftsman style living.
Upon entering, you'll be greeted by beautiful crisp white shaker cabinets, a stylish tile backsplash, and stainless steel appliances, including a gas stove. The large quartz island is perfect for gathering with family and friends, making it an ideal spot for food, fun, and lively interaction. The open concept design ensures that entertaining is a breeze, as the kitchen seamlessly flows into the breakfast room and spacious great room.
Imagine sipping your morning coffee on your back covered patio, enjoying the tranquility of your new home. Upstairs, you'll find a generous master bedroom with a walk-in shower en suite and a tankless gas water heater. Additionally, this charming home offers two other bedrooms, a full bath, and a convenient laundry room.
GVL MLS # 1587196
Quick Facts
Time on Site
24 days ago
Property Type
Residential
Year Built
2026
Lot Size
7,840 sqft
Price/Sq.Ft.
$138
HOA Fees
$160/mo
Property Details
Schools
Features & Amenities
Features:
- Ceiling Smooth
- Open Floorplan
- Countertops-Other
- Countertops – Quartz
- Pantry
Location & Map
Map View
Loading map...
Additional Information
Community
- Common Areas
- Street Lights
- Pool
Lot & Land
- 1/2 Acre or Less
Tax Information
Interior Details
- Carpet
- Laminate
- Dishwasher
- Disposal
- Free-Standing Gas Range
- Microwave
- Electric Water Heater
- 2nd Floor
- Walk-in
- Electric Dryer Hookup
- Laundry Room
- Ceiling Smooth
- Open Floorplan
- Countertops-Other
- Countertops – Quartz
- Pantry
Parking & Garage
- Attached
- Paved
- Garage Door Opener
Exterior Features
- Composition
- Attached
- Paved
- Garage Door Opener
- Slab
- Patio
- Vinyl Siding
H O A & Association
Property Overview
- Two
- Craftsman
Utilities & Systems
- Central Air
- Electric
- Forced Air
- Natural Gas
- Sewer Available
- Public
Listing Agent Information
The information is being provided by Greater Greenville MLS. Information deemed reliable but not guaranteed. Information is provided for consumers' personal, non-commercial use, and may not be used for any purpose other than the identification of potential properties for purchase. Copyright 2025 Greater Greenville MLS. All Rights Reserved.


