




$699,000
1049 Pinecone Avenue
Indian Land, SC 29707
About This Property
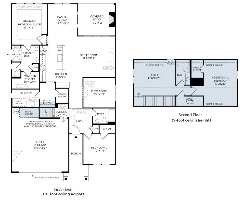
The casual dining area is adjacent to the spacious kitchen with butler's pantry and provides a convenient & intimate setting for entertaining. It overlooks the covered porch with stone, gas log fireplace, ideal for enjoying those outdoor times. The spacious great room is perfectly situated to host large gatherings.
Create your ideal living space with the generous flex room located on the first floor. The lovely primary bedroom offers a comfortable retreat and a lavish bath. A 2nd floor flex room with adjacent guest bedroom with walk in closet and full bath offer private accommodations for your guest.
Located in The Pines at Sugar Creek, a vibrant 55+ community designed for low-maintenance living and an active lifestyle. Community amenities are underway & include a pool, spa, pickleball, tennis & bocce courts, fitness center, clubhouse & more. Pricing reflects the base home price, structural options and homesite premium only.
CAR MLS # 289150702
Quick Facts
Time on Site
5 months ago
Property Type
Residential
Year Built
2026
Price/Sq.Ft.
$303
Property Details
Schools
Features & Amenities
Features:
- Breakfast Bar
- Cable Prewire
- Kitchen Island
- Open Floorplan
- Pantry
- Split Bedroom
- Walk-In Closet(s)
- Walk-In Pantry
Location & Map
Map View
Loading map...
Additional Information
Utilities
- County Sewer
- Cable Available
- Electricity Connected
- Natural Gas
- Underground Power Lines
- Underground Utilities
- Wired Internet Available
- County Water
Lot And Land
- Cleared
- Level
Agent Contacts
- Palmetto Park Realty Team Fort Mill: 803.548.6123
Interior Details
- Forced Air
- Natural Gas
- Carpet
- Tile
- Vinyl
- Sliding Doors
- Insulated Window(s)
- Electric Dryer Hookup
- Laundry Room
- Main Level
- Washer Hookup
- Breakfast Bar
- Cable Prewire
- Kitchen Island
- Open Floorplan
- Pantry
- Split Bedroom
- Walk-In Closet(s)
- Walk-In Pantry
- Carbon Monoxide Detector(s)
- Smoke Detector(s)
- Gas
- Gas Log
- Outside
- Porch
Exterior Features
- Architectural Shingle
- Lawn Maintenance
- Fiber Cement
- Stone Veneer
- Covered
- Front Porch
- Rear Porch
Parking And Garage
- Attached Garage
- Garage Door Opener
Financial Information
Dwelling And Structure
- Ranch
Basement And Foundation
- Slab
Zoning And Restrictions
Square Footage And Levels
- One and One Half
Additional C A R Information
IDX information is provided exclusively for consumers' personal, non-commercial use only; it may not be used for any purpose other than to identify prospective properties consumers may be interested in purchasing. Data is deemed reliable but is not guaranteed accurate by the MLS GRID. Use of this site may be subject to an end user license agreement. Based on information submitted to the MLS GRID as of Mon, Mar 16, 2026. All data is obtained from various sources and may not have been verified by broker or MLS GRID. Supplied Open House Information is subject to change without notice. All information should be independently reviewed and verified for accuracy. Properties may or may not be listed by the office/agent presenting the information. Some IDX listings have been excluded from this website. Any use by you of search facilities of data on the site, other than by a consumer looking to purchase real estate, is prohibited. DMCA Notice: Palmetto Park Realty respects the intellectual property rights of others. If you believe that your work has been copied in a way that constitutes copyright infringement, please provide our designated agent with written notice containing the following information: (1) identification of the copyrighted work claimed to have been infringed; (2) identification of the material that is claimed to be infringing; (3) your contact information; (4) a statement that you have a good faith belief that use of the material is not authorized; and (5) a statement that the information in the notification is accurate and you are authorized to act on behalf of the copyright owner. Please send DMCA notices to: [email protected]


