


$256,900
604 Millwright Way
Greer, SC 29651
About This Property
This Property Has Been Sold
This property sold 3 years ago and is no longer available for purchase.
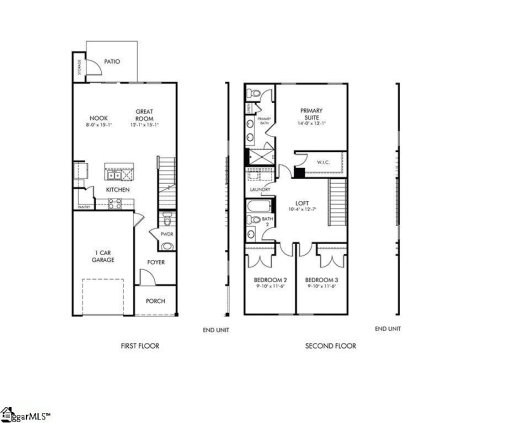
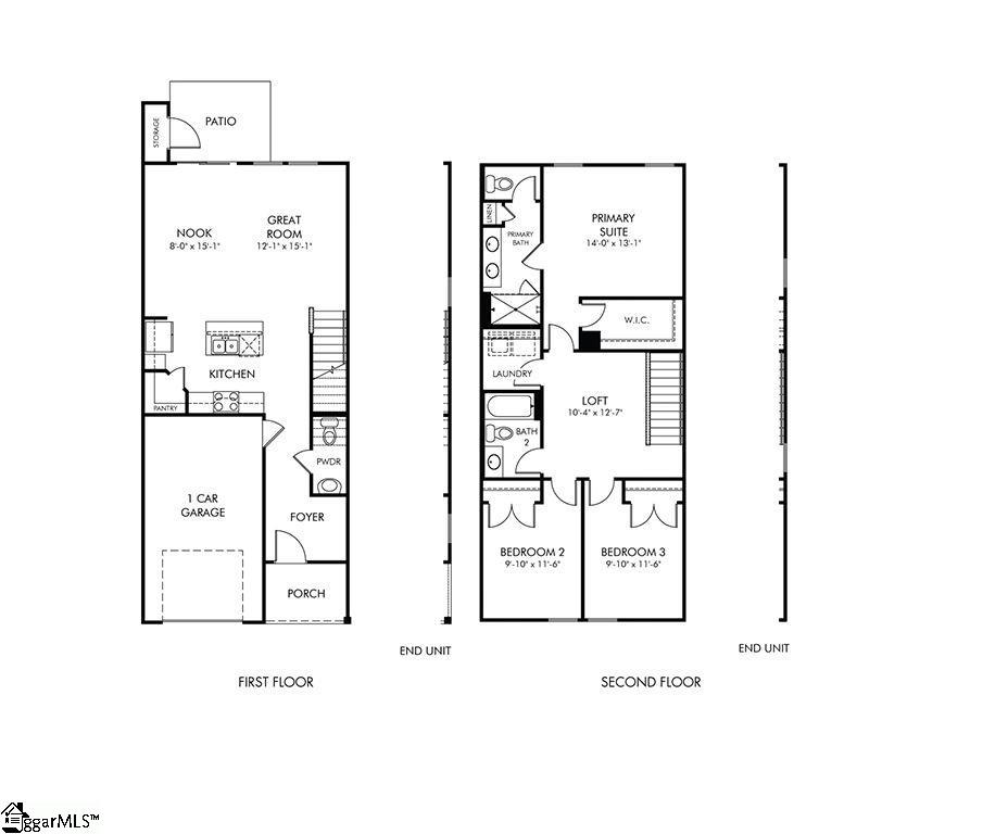
View active listings in City Station Townes →Brand NEW energy-efficient home ready February 2023! Invite friends over to watch the big game in the spacious second-story loft. The primary suite features dual sinks and a large walk-in closet.
Downstairs, the kitchen island overlooks the great room and dining area. City Station Townes is an incredible townhome community within walking distance from downtown Greer. These affordable townhomes will feature open floorplans with private outdoor patios perfect for entertaining.
Known for our energy saving features, our homes help you live a healthier and quieter lifestyle, while saving you thousands on utility bills.
GVL MLS # 1482672
Quick Facts
Time on Site
4 years ago
Property Type
Residential
Year Built
2023
Lot Size
2,178 sqft
HOA Fees
$120/mo
Property Details
Schools
Features & Amenities
Features:
- High Ceilings
- Ceiling Smooth
- Open Floorplan
- Walk-In Closet(s)
- Countertops – Quartz
- Pantry
Location & Map
Map View
Loading map...
Additional Information
Community
- Street Lights
- Sidewalks
Lot & Land
- 1/2 Acre or Less
- Few Trees
Tax Information
Interior Details
- Carpet
- Ceramic Tile
- Laminate
- Dishwasher
- Disposal
- Free-Standing Gas Range
- Microwave
- Tankless Water Heater
- 2nd Floor
- Laundry Room
- High Ceilings
- Ceiling Smooth
- Open Floorplan
- Walk-In Closet(s)
- Countertops – Quartz
- Pantry
Parking & Garage
- Attached
- Paved
Exterior Features
- Composition
- Attached
- Paved
- Slab
- Patio
- Front Porch
- Hardboard Siding
H O A & Association
Property Overview
- Two
- Craftsman
Utilities & Systems
- Public Sewer
- Electric
- Electric
- Underground Utilities
- Cable Available
- Public
Listing Agent Information
The information is being provided by Greater Greenville MLS. Information deemed reliable but not guaranteed. Information is provided for consumers' personal, non-commercial use, and may not be used for any purpose other than the identification of potential properties for purchase. Copyright 2025 Greater Greenville MLS. All Rights Reserved.
You Might Also Like...
Interested in selling in City Station Townes?

