




$249,999
762 Ben Gunn Run
Gilbert, SC 29054
About This Property
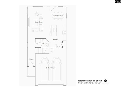
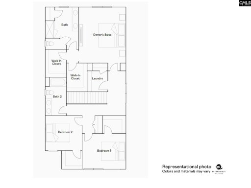
Welcome to your stunning NEW 3-bedroom, 2.5-bath Anderson plan in Lexington County, perfectly situated for easy commuting in Gilbert, SC. Enjoy the convenience of nearby Lexington shopping, Lake Murray, top-rated schools, and just a 40-minute drive to downtown Columbia.
This home features elegant quartz countertops in the kitchen, wood-inspired vinyl plank flooring throughout the first floor, and a seamless transition from the living space to the backyard. An amazing iron baluster 1st floor oak stair rail greets you in this large open foyer. This home also offers exceptional indoor and outdoor spaces, perfect for entertaining and relaxation.
The open kitchen has spacious counters, an expansive island, and modern stainless-steel appliances, including a gas stove, tiled backsplash, microwave and dishwasher. All bedrooms are located on the second floor for privacy from the main level. The second-floor owner’s suite includes 2 full walk-in closets and double vanity bathroom.
COL MLS # 629134
Quick Facts
Time on Site
1 month ago
Property Type
Residential
Year Built
2025
Lot Size
3,049 sqft
Price/Sq.Ft.
$130
Property Details
Schools
Features & Amenities
Features:
- Garage Opener
- Smoke Detector
- Attic Pull-Down Access
- Attic Access
Location & Map
Map View
Loading map...
Additional Information
Laundry
- Electric
- Heated Space
Lot & Land
Room Details
- Eat In
- Island
- Pantry
- Backsplash-Tiled
- Cabinets-Painted
- Recessed Lights
- Counter Tops-Quartz
- Floors-Luxury Vinyl Plank
Miscellaneous
- Cable TV Available
- Warranty (New Const) Bldr
Primary Suite
- Double Vanity
- Bath-Private
- Separate Shower
- Closet-Walk in
- Closet-Private
- Floors - Carpet
- Floors-Luxury Vinyl Plank
Interior Details
- Dishwasher
- Disposal
- Microwave Above Stove
- Tankless H20
- Gas Water Heater
- Garage Opener
- Smoke Detector
- Attic Pull-Down Access
- Attic Access
Parking & Garage
- Garage Attached
- Front Entry
Exterior Features
- Patio
- Sprinkler
- Gutters - Full
- Front Porch - Covered
H O A & Association
- Common Area Maintenance
- Green Areas
Property Overview
Utilities & Systems
- Gas 1st Lvl
- Gas 2nd Lvl
Listing Agent Information
Details provided by Consolidated MLS and may not match the public record. Learn more. The information is being provided by Consolidated Multiple Listing Service, Inc. Information deemed reliable but not guaranteed. Information is provided for consumers' personal, non-commercial use, and may not be used for any purpose other than the identification of potential properties for purchase. © 2025 Consolidated Multiple Listing Service, Inc. All Rights Reserved.


