




$235,999
721 Ben Gunn Run
Gilbert, SC 29054
About This Property
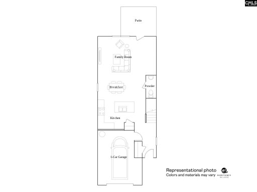
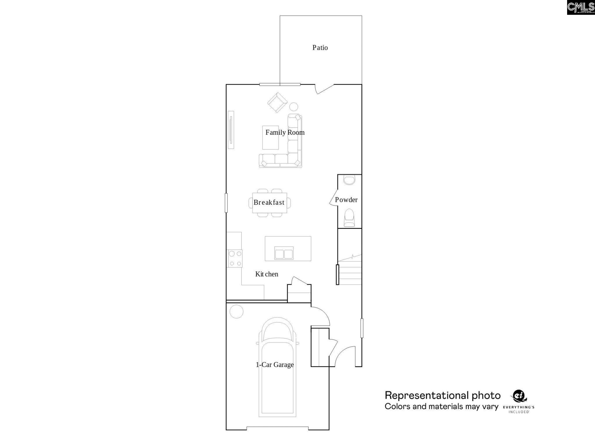
Tucked away in Gilbert you will find your stunning NEW 3-bedroom, 2.5-bath Lexington floorplan. Enjoy the convenience of nearby Lexington shopping, Lake Murray, top-rated schools, with a 40-minute drive to downtown Columbia.
This home features elegant quartz countertops in the kitchen, wood-inspired vinyl plank flooring throughout the first floor, and a seamless transition from the living space to a large back patio. This home also offers exceptional indoor and outdoor spaces, perfect for entertainment and relaxation. The open kitchen has spacious counters, tiled backsplash, an expansive island, and modern stainless-steel appliances, including a gas stove, microwave and dishwasher.
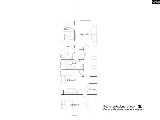
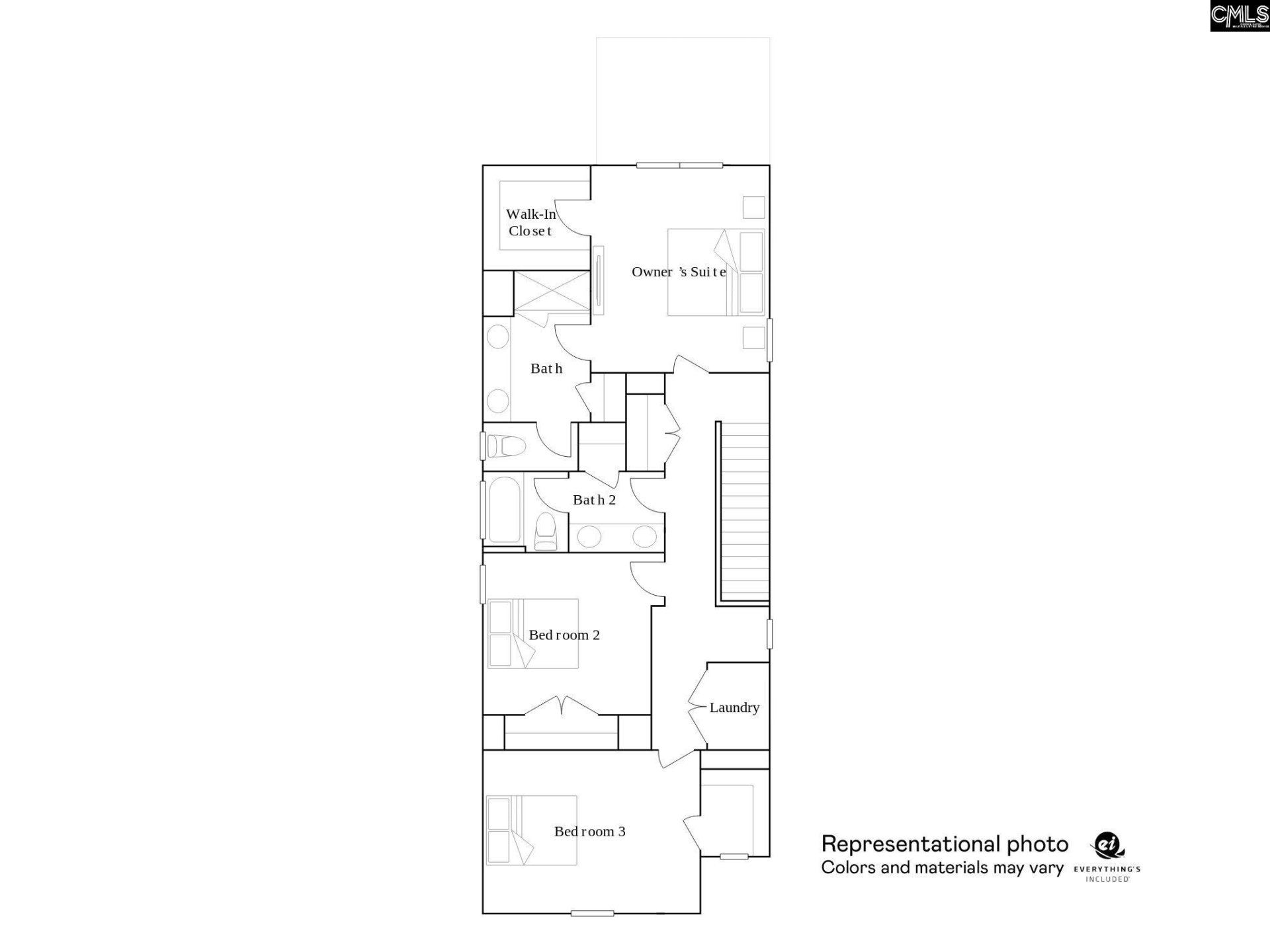
All bedrooms are located on the second floor for privacy from the main level. The second-floor owner’s suite includes a full walk in closet and double vanity bathroom with a large shower. An additional full bathroom is conveniently located near 2 quaint bedrooms.
COL MLS # 627497
Quick Facts
Time on Site
2 months ago
Property Type
Residential
Year Built
2025
Lot Size
3,484 sqft
Price/Sq.Ft.
$139
Property Details
Schools
Features & Amenities
Features:
- Garage Opener
- Smoke Detector
- Attic Pull-Down Access
- Attic Access
Location & Map
Map View
Loading map...
Additional Information
Laundry
- Electric
- Heated Space
Lot & Land
Room Details
- Eat In
- Island
- Pantry
- Backsplash-Tiled
- Cabinets-Painted
- Recessed Lights
- Counter Tops-Quartz
- Floors-Luxury Vinyl Plank
Miscellaneous
- Cable TV Available
- Warranty (New Const) Bldr
Primary Suite
- Double Vanity
- Bath-Private
- Separate Shower
- Closet-Walk in
- Closet-Private
- Floors - Carpet
- Floors-Luxury Vinyl Plank
Interior Details
- Dishwasher
- Disposal
- Microwave Above Stove
- Stove Exhaust Vented Exte
- Tankless H20
- Gas Water Heater
- Garage Opener
- Smoke Detector
- Attic Pull-Down Access
- Attic Access
Parking & Garage
- Garage Attached
- Front Entry
Exterior Features
- Patio
- Sprinkler
- Gutters - Full
- Front Porch - Covered
- Brick-Partial-AbvFound
- Vinyl
H O A & Association
- Cable TV
- Common Area Maintenance
- Green Areas
Property Overview
Utilities & Systems
- Gas 1st Lvl
- Gas 2nd Lvl
Listing Agent Information
Details provided by Consolidated MLS and may not match the public record. Learn more. The information is being provided by Consolidated Multiple Listing Service, Inc. Information deemed reliable but not guaranteed. Information is provided for consumers' personal, non-commercial use, and may not be used for any purpose other than the identification of potential properties for purchase. © 2025 Consolidated Multiple Listing Service, Inc. All Rights Reserved.


