




$514,990
3009 Oak Landing Drive
Charlotte, NC 28205
About This Property
This Property Has Been Sold
This property sold 1 year ago and is no longer available for purchase.
View active listings in Hudson Oaks →MLS#4150354 REPRESENTATIVE PHOTOS ADDED. Fall Completion! The Breckenridge II plan at Hudson Oaks is a 3-story new construction townhome in Charlotte, NC, featuring an optional rooftop sky terrace.
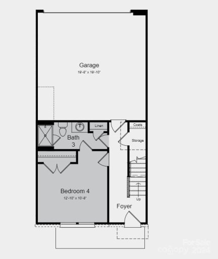
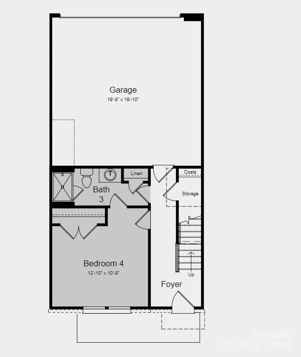
On the ground floor, a large flex space is accessible from the 2-car garage or main entrance, with an inviting foyer leading upstairs. The second floor showcases a beautiful open-concept layout, including a spacious gathering room with a deck, a deluxe gourmet kitchen with a large center island, and a bright dining room with an adjacent powder room.
CAR MLS # 217645163
Quick Facts
Time on Site
2 years ago
Property Type
Residential
Year Built
2024
Price/Sq.Ft.
$264
Property Details
Schools
Features & Amenities
Features:
- Attic Stairs Pulldown
- Entrance Foyer
- Kitchen Island
- Open Floorplan
- Pantry
- Walk-In Closet(s)
Location & Map
Map View
Loading map...
Additional Information
Utilities
- Public Sewer
- City
Lot And Land
Agent Contacts
- Palmetto Park Realty Team Fort Mill: 803.548.6123
Interior Details
- Zoned
- Carpet
- Tile
- Vinyl
- Electric Dryer Hookup
- Upper Level
- Attic Stairs Pulldown
- Entrance Foyer
- Kitchen Island
- Open Floorplan
- Pantry
- Walk-In Closet(s)
Exterior Features
- Lawn Maintenance
- Brick Partial
- Hardboard Siding
- Shingle/Shake
- Deck
- Rear Porch
Parking And Garage
- Attached Garage
- Garage Door Opener
- Garage Faces Rear
Financial Information
Dwelling And Structure
- Transitional
Basement And Foundation
- Slab
Zoning And Restrictions
Square Footage And Levels
- Three
Additional C A R Information
IDX information is provided exclusively for consumers' personal, non-commercial use only; it may not be used for any purpose other than to identify prospective properties consumers may be interested in purchasing. Data is deemed reliable but is not guaranteed accurate by the MLS GRID. Use of this site may be subject to an end user license agreement. Based on information submitted to the MLS GRID as of Wed, Nov 20, 2024. All data is obtained from various sources and may not have been verified by broker or MLS GRID. Supplied Open House Information is subject to change without notice. All information should be independently reviewed and verified for accuracy. Properties may or may not be listed by the office/agent presenting the information. Some IDX listings have been excluded from this website. Any use by you of search facilities of data on the site, other than by a consumer looking to purchase real estate, is prohibited. DMCA Notice: Palmetto Park Realty respects the intellectual property rights of others. If you believe that your work has been copied in a way that constitutes copyright infringement, please provide our designated agent with written notice containing the following information: (1) identification of the copyrighted work claimed to have been infringed; (2) identification of the material that is claimed to be infringing; (3) your contact information; (4) a statement that you have a good faith belief that use of the material is not authorized; and (5) a statement that the information in the notification is accurate and you are authorized to act on behalf of the copyright owner. Please send DMCA notices to: [email protected]
You Might Also Like...
Interested in selling in Hudson Oaks?