




$835,000
11333 Preservation Lane
About This Property
This Property Has Been Sold
This property sold 7 months ago and is no longer available for purchase.
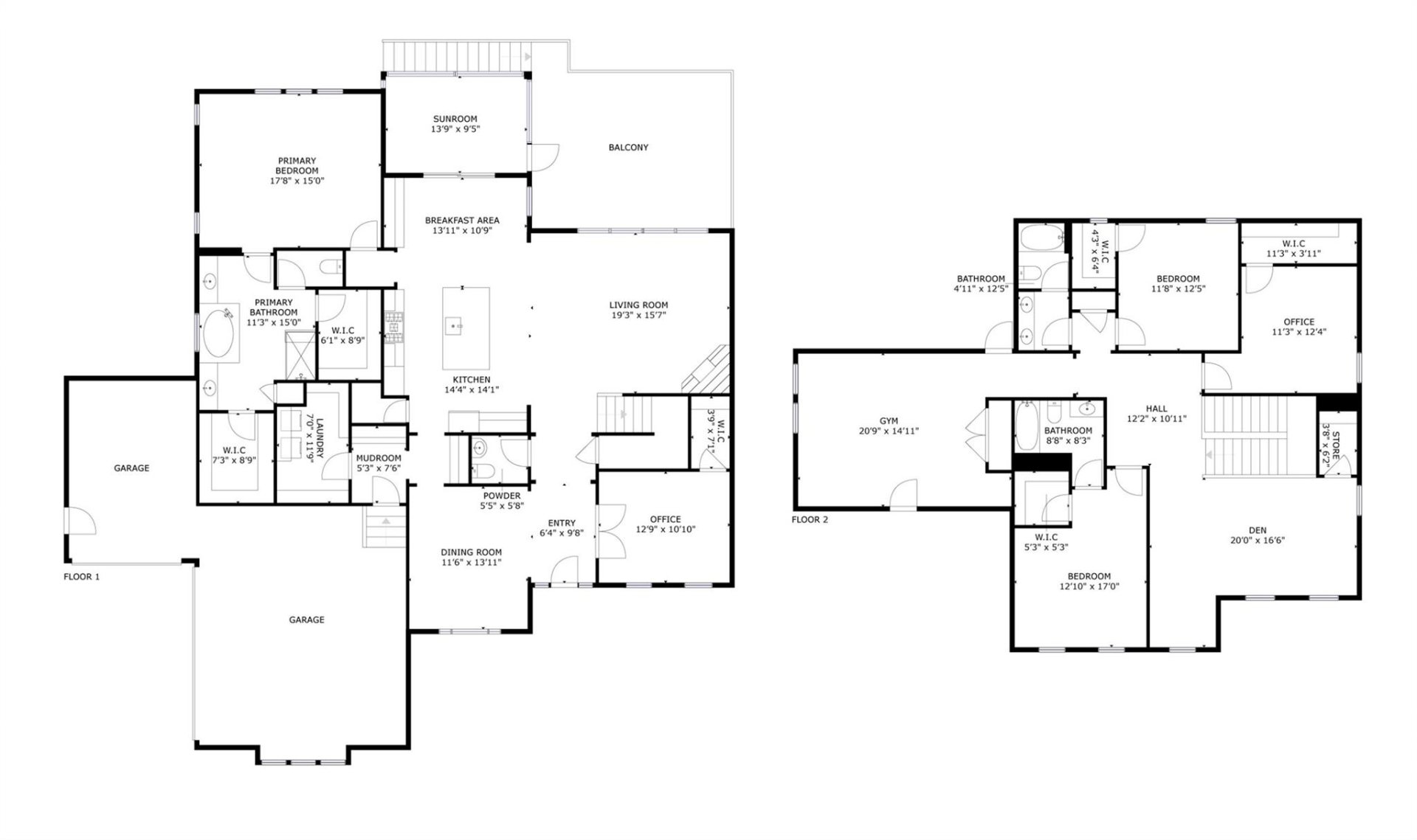
View active listings in Chapel Cove →Welcome to 11333 Preservation Lane, nestled in the sought-after Chapel Cove community in Charlotte, NC! This stunning 5-bedroom, 3.5-bath home offers a perfect blend of style and functionality.
The main floor features a spacious primary suite with a spa-like en-suite bath and walk-in closet his and hers closets, providing comfort and convenience. The open-concept layout includes a gourmet kitchen with granite countertops, stainless steel appliances, and a large island flowing into a bright living area—ideal for gatherings. Upstairs, you’ll find generously sized bedrooms, a versatile loft space and bonus room with 2 unfinished storage areas.
Enjoy the private, fenced backyard and patio for outdoor living. Chapel Cove amenities include a pool, fitness center, clubhouse, tennis courts, and lake access. This property and community are the definition of luxury and comfort that must be experienced in person.
CAR MLS # 276921381
Quick Facts
Time on Site
10 months ago
Property Type
Residential
Year Built
2014
Price/Sq.Ft.
$215
Property Details
Schools
Features & Amenities
Location & Map
Map View
Loading map...
Additional Information
Utilities
- Public Sewer
- City
Lot And Land
Agent Contacts
- Palmetto Park Realty Team Fort Mill: 803.548.6123
Interior Details
- Central
- Laundry Room
Exterior Features
- Brick Partial
- Hardboard Siding
- Stone Veneer
Parking And Garage
- Driveway
- Attached Garage
Financial Information
Basement And Foundation
- Crawl Space
- Slab
Zoning And Restrictions
Square Footage And Levels
- Two
Additional C A R Information
IDX information is provided exclusively for consumers' personal, non-commercial use only; it may not be used for any purpose other than to identify prospective properties consumers may be interested in purchasing. Data is deemed reliable but is not guaranteed accurate by the MLS GRID. Use of this site may be subject to an end user license agreement. Based on information submitted to the MLS GRID as of Thu, Aug 14, 2025. All data is obtained from various sources and may not have been verified by broker or MLS GRID. Supplied Open House Information is subject to change without notice. All information should be independently reviewed and verified for accuracy. Properties may or may not be listed by the office/agent presenting the information. Some IDX listings have been excluded from this website. Any use by you of search facilities of data on the site, other than by a consumer looking to purchase real estate, is prohibited. DMCA Notice: Palmetto Park Realty respects the intellectual property rights of others. If you believe that your work has been copied in a way that constitutes copyright infringement, please provide our designated agent with written notice containing the following information: (1) identification of the copyrighted work claimed to have been infringed; (2) identification of the material that is claimed to be infringing; (3) your contact information; (4) a statement that you have a good faith belief that use of the material is not authorized; and (5) a statement that the information in the notification is accurate and you are authorized to act on behalf of the copyright owner. Please send DMCA notices to: [email protected]
You Might Also Like...
Interested in selling in Chapel Cove?


