

$569,900
1513 Delhaven Court
About This Property
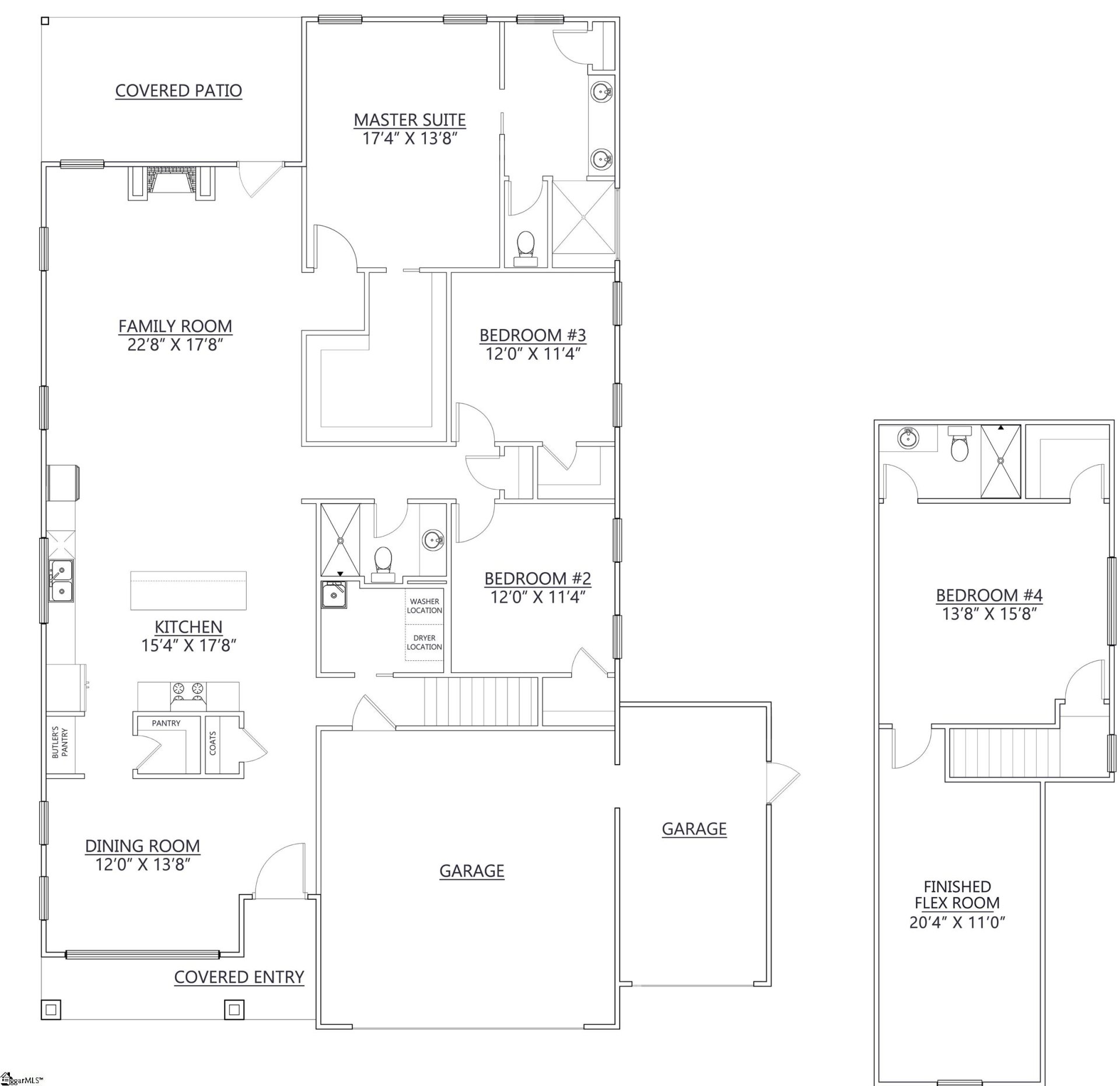
The Vail is one of our thoughtfully designed homes featured at Alder Pond in Campobello, South Carolina. This spacious two-story home features a modern layout with four bedrooms, three full bathrooms, and a three-car garage. The Vail combines comfort and functionality with open living spaces perfect for those and entertaining.
As you enter through the covered entry, you’re welcomed by a dining room that flows seamlessly into the kitchen. The kitchen features modern appliances, a pantry, a butler’s pantry, and a large island overlooking the living room, creating a bright and inviting gathering space. From the living room, step outside to the covered patio—ideal for outdoor relaxation or dining.
The primary suite provides a peaceful retreat with a spacious bathroom featuring dual vanities, a separate shower, and a walk-in closet. Two additional bedrooms and a full bathroom are conveniently located on the main level, featuring comfort for family or guests. Upstairs, you’ll find a fourth bedroom, a full bathroom, and a finished flex room that can be used as a media room, office, or playroom.
GVL MLS # 1573888
Quick Facts
Time on Site
3 months ago
Property Type
Residential
Year Built
2025
Lot Size
22,651 sqft
Price/Sq.Ft.
$216
Property Details
Schools
Features & Amenities
Location & Map
Map View
Loading map...
Additional Information
Community
- Common Areas
- Lights
- Neighborhood Lake/Pond
Lot & Land
- Level
- Underground Utilities
Primary Suite
- Double Sink
- Full Bath
- Primary on Main Lvl
- Shower Only
- Walk-in Closet
Specialty Rooms
- Laundry
- Bonus Room/Rec Room
Interior Details
- Carpet
- Ceramic Tile
- Laminate Flooring
- Luxury Vinyl Tile/Plank
- Dishwasher
- Disposal
- Stand Alone Range-Gas
- Oven-Gas
- Microwave-Built In
- Sink
- 1st Floor
- Walk-in
- 2 Story Foyer
- Cable Available
- Ceiling 9ft+
- Ceiling Fan
- Ceiling Smooth
- Countertops-Solid Surface
- Smoke Detector
- Tub Garden
- Walk In Closet
- Pantry - Closet
- Smart Systems Pre-Wiring
- Gas Logs
- Ventless
Parking & Garage
Exterior Features
- Porch-Front
- Tilt Out Windows
- Vinyl/Aluminum Trim
- Windows-Insulated
- Porch-Covered Back
H O A & Association
- Street Lights
- Restrictive Covenants
Property Overview
Utilities & Systems
- Central Forced
- Electric
- Forced Air
- Natural Gas
Listing Agent Information
The information is being provided by Greater Greenville MLS. Information deemed reliable but not guaranteed. Information is provided for consumers' personal, non-commercial use, and may not be used for any purpose other than the identification of potential properties for purchase. Copyright 2025 Greater Greenville MLS. All Rights Reserved.
