





641 Clementine Run in Winston Point, Gilbert, SC
641 Clementine Run, Gilbert, SC 29054
$300,633
$300,633
Does this home feel like a match?
Let us know — it helps us curate better suggestions for you.
Property Highlights
Bedrooms
4
Bathrooms
3
Living Area
2,429 SqFt
Property Details
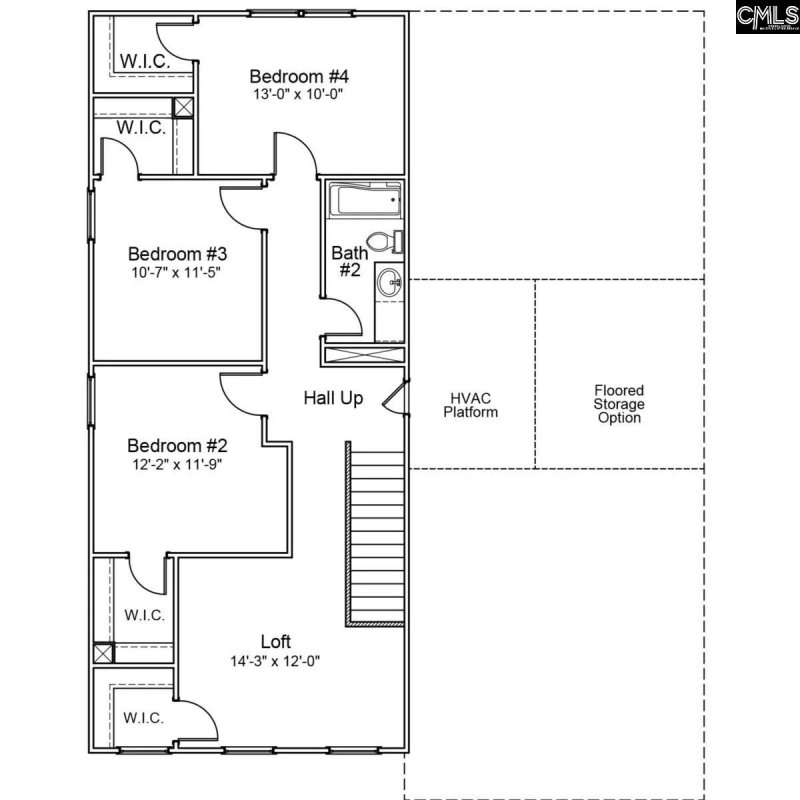
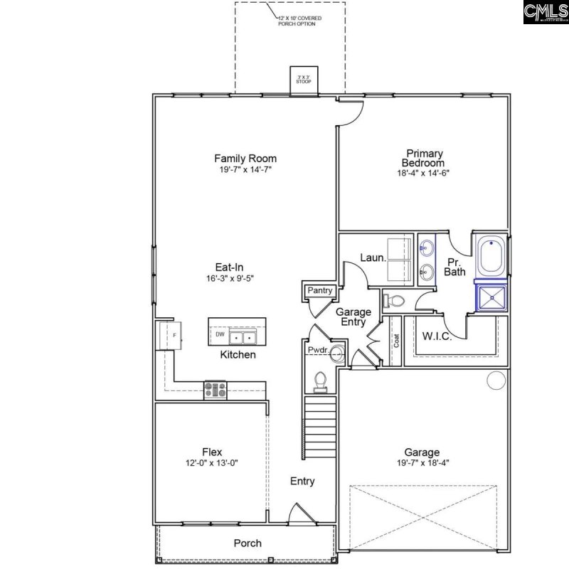
The two-story Pickens is a four-bedroom, two-and-one-half-bath home that has a primary on the main level! A flex space is available just inside the front door, making it the perfect spot for a dining space or an office. An open kitchen, eating area, and great room are all open for entertaining.
Time on Site
3 weeks ago
Property Type
Residential
Year Built
2025
Lot Size
7,840 SqFt
Price/Sq.Ft.
$124
HOA Fees
Request Info from Buyer's AgentListing Information
- LocationGilbert
 - MLS #COL618997
 - Last UpdatedOctober 7, 2025
 
Property Details
School Information
Additional Information
Property Details
Exterior Features
Interior Features
Contact Information
Systems & Utilities
Location Information
Details provided by Consolidated MLS and may not match the public record. Learn more. The information is being provided by Consolidated Multiple Listing Service, Inc. Information deemed reliable but not guaranteed. Information is provided for consumers' personal, non-commercial use, and may not be used for any purpose other than the identification of potential properties for purchase. © 2025 Consolidated Multiple Listing Service, Inc. All Rights Reserved.
Listing Information
- LocationGilbert
 - MLS #COL618997
 - Last UpdatedOctober 7, 2025