



211 Bangalore Way in Winston Point, Gilbert, SC
211 Bangalore Way, Gilbert, SC 29054
$247,280
$247,280
Does this home feel like a match?
Let us know — it helps us curate better suggestions for you.
Property Highlights
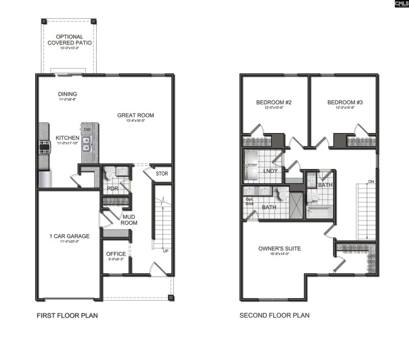
Bedrooms
3
Bathrooms
3
Living Area
1,662 SqFt
Property Details
Estimated Completion, February 2026. Step into the Anderson and discover a home that perfectly balances style, function, and affordability. This two-story design welcomes you with a versatile flex space — ideal for a home office, study nook, or creative corner.
Time on Site
3 weeks ago
Property Type
Residential
Year Built
2025
Lot Size
4,791 SqFt
Price/Sq.Ft.
$149
HOA Fees
Request Info from Buyer's AgentProperty Details
School Information
Loading map...
Additional Information
Property Details
Exterior Features
Interior Features
Contact Information
Systems & Utilities
Location Information
Details provided by Consolidated MLS and may not match the public record. Learn more. The information is being provided by Consolidated Multiple Listing Service, Inc. Information deemed reliable but not guaranteed. Information is provided for consumers' personal, non-commercial use, and may not be used for any purpose other than the identification of potential properties for purchase. © 2025 Consolidated Multiple Listing Service, Inc. All Rights Reserved.
