




559 Marcus Way in Taylor Hill, Gilbert, SC
559 Marcus Way, Gilbert, SC 29054
$194,999
$194,999
Does this home feel like a match?
Let us know — it helps us curate better suggestions for you.
Property Highlights
Bedrooms
3
Bathrooms
3
Living Area
1,346 SqFt
Property Details
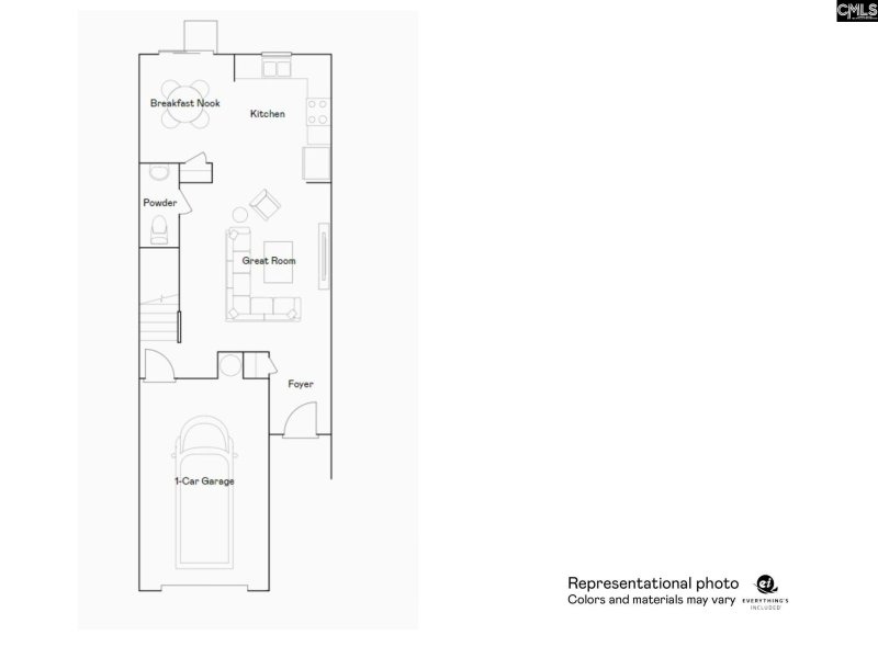
February 2026 Move in! Amazing NEW 3-bedroom, 2.5-bath Denali plan located in Gilbert, SC.
Time on Site
3 days ago
Property Type
Residential
Year Built
2025
Lot Size
1,742 SqFt
Price/Sq.Ft.
$145
HOA Fees
Request Info from Buyer's AgentProperty Details
School Information
Loading map...
Additional Information
Property Details
- Dishwasher
- Disposal
- Microwave Above Stove
- Stove Exhaust Vented Exte
- Tankless H20
- Gas Water Heater
Exterior Features
- Brick- Partial- Abv Found
- Vinyl
- Sprinkler
- Gutters - Full
Interior Features
- Recessed Lights
- Floors- Luxury Vinyl Plank
- Eat In
- Pantry
- Backsplash- Tiled
- Cabinets- Painted
- Recessed Lights
- Counter Tops- Quartz
- Floors- Luxury Vinyl Plank
- Garage Opener
- Smoke Detector
- Attic Pull- Down Access
- Attic Access
- Closet- Private
- Floors - Carpet
- Closet- Private
- Floors - Carpet
- Double Vanity
- Bath- Private
- Separate Shower
- Closet- Walk In
- Closet- Private
- Floors - Carpet
- Floors- Luxury Vinyl Plank
Contact Information
Systems & Utilities
- Gas 1St Lvl
- Gas 2Nd Lvl
Location Information
Financial Information
- Back Yard Maintenance
- Cable T V
- Common Area Maintenance
- Front Yard Maintenance
- Cash
- Conventional
- Rural Housing Eligible
- F H A
- V A
Additional Information
- Cable
- Warranty ( New Const) Bldr
Details provided by Consolidated MLS and may not match the public record. Learn more. The information is being provided by Consolidated Multiple Listing Service, Inc. Information deemed reliable but not guaranteed. Information is provided for consumers' personal, non-commercial use, and may not be used for any purpose other than the identification of potential properties for purchase. © 2025 Consolidated Multiple Listing Service, Inc. All Rights Reserved.
