





Iconic Charleston Mansion: Historic Grandeur with Lush Gardens
81 Rutledge Avenue, Charleston, SC 29401
$6,200,000
$6,200,000
Property Highlights
Bedrooms
11
Bathrooms
6
Property Details
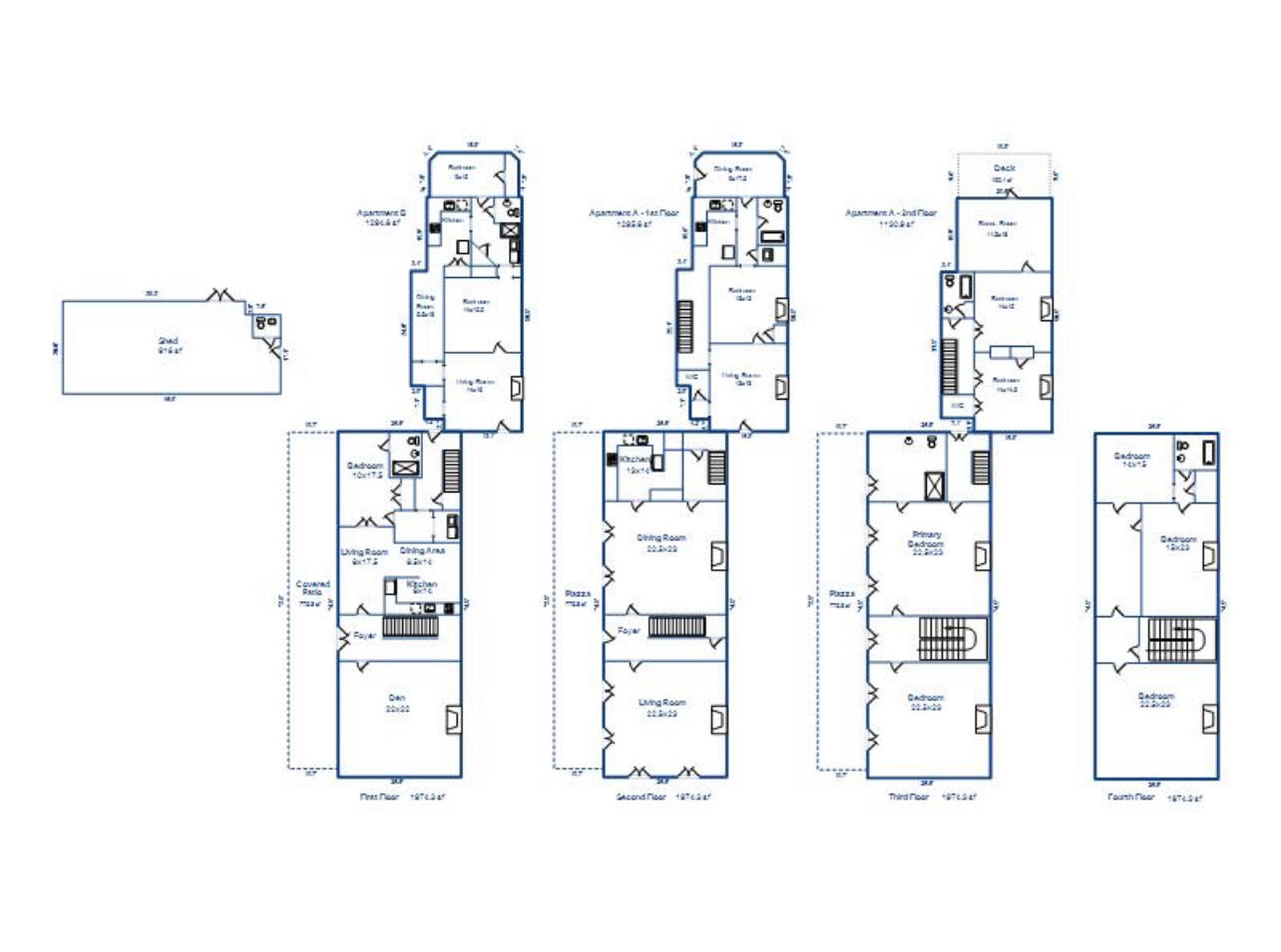
The Sottile-Glover Mansion is an exceptional building, which is listed in the prestigious National Register of Historic Places. The first recorded sale of 81 Rutledge Avenue, then known as 6 Rutledge Street, was in 1775.Estate OverviewThree buildings on 79 & 81 Rutledge AvenueMain building (built in 1826) - a grand residence ideal for entertaining, featuring large rooms and piazzasOriginal house (pre-1775) - now divided into:Four-bedroom long-term rentalTwo-bedroom short-term rentalThird building - former carriage house with three stories, now used for storageAmple parking availablePrime location - Walking distance to MUSC, King Street, Colonial Lake, Broad Street, and the College of CharlestonProperty Description " Carriage house (third building) " Originally housed carriages, a community room for servants, and seven small bedrooms " Middle house (original house) " Built before 1775, constructed using wooden pegs " Now divided into rental units " Main house " Built in 1826 by Dr.
Time on Site
4 months ago
Property Type
Residential
Year Built
1826
Lot Size
17,424 SqFt
Price/Sq.Ft.
N/A
HOA Fees
Request Info from Buyer's AgentProperty Details
School Information
Additional Information
Region
Lot And Land
Agent Contacts
Community & H O A
Room Dimensions
Property Details
Exterior Features
Interior Features
Systems & Utilities
Financial Information
Additional Information
- IDX
- -79.942171
- 32.779728
- Crawl Space
- Slab