


1488 Kate Cecil Way in Bellamore, York, SC
SOLD1488 Kate Cecil Way, York, SC 29745
$425,910
$425,910
Sale Summary
Sold below asking price • Extended time on market
Does this home feel like a match?
Let us know — it helps us curate better suggestions for you.
Property Highlights
Bedrooms
4
Bathrooms
3
Living Area
2,532 SqFt
Property Details
This Property Has Been Sold
This property sold 1 month ago and is no longer available for purchase.
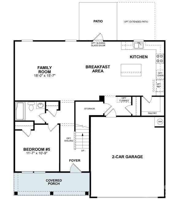
View active listings in Bellamore →Welcome to the Erie at Bellamore! This community is just a short drive from Charlotte, Fort Mill or Rock Hill and has all the amenities needed for a functional lifestyle including a future pool, fitness center and pickleball courts. Walking in from your front porch, you are greeted with an inviting foyer with a guest suite just off to the side.
Time on Site
5 months ago
Property Type
Residential
Year Built
2025
Lot Size
N/A
Price/Sq.Ft.
$168
HOA Fees
Request Info from Buyer's AgentProperty Details
School Information
Loading map...
Additional Information
Utilities
- Public Sewer
- Cable Available
- Natural Gas
- City
Lot And Land
Agent Contacts
- Palmetto Park Realty Team Fort Mill: 803.548.6123
Interior Details
- Forced Air
- Natural Gas
- Carpet
- Vinyl
- Sliding Doors
- Insulated Window(s)
- Electric Dryer Hookup
- Laundry Room
- Main Level
- Washer Hookup
- Attic Stairs Pulldown
- Cable Prewire
- Kitchen Island
- Open Floorplan
- Pantry
- Carbon Monoxide Detector(s)
- Smoke Detector(s)
Exterior Features
- Fiberglass
- Fiber Cement
- Front Porch
Parking And Garage
- Attached Garage
- Garage Door Opener
- Garage Faces Front
Financial Information
Dwelling And Structure
- Farmhouse
Basement And Foundation
- Slab
Zoning And Restrictions
Square Footage And Levels
- Two
Additional C A R Information
IDX information is provided exclusively for consumers' personal, non-commercial use only; it may not be used for any purpose other than to identify prospective properties consumers may be interested in purchasing. Data is deemed reliable but is not guaranteed accurate by the MLS GRID. Use of this site may be subject to an end user license agreement. Based on information submitted to the MLS GRID as of Mon, Nov 10, 2025. All data is obtained from various sources and may not have been verified by broker or MLS GRID. Supplied Open House Information is subject to change without notice. All information should be independently reviewed and verified for accuracy. Properties may or may not be listed by the office/agent presenting the information. Some IDX listings have been excluded from this website. Any use by you of search facilities of data on the site, other than by a consumer looking to purchase real estate, is prohibited. DMCA Notice: Palmetto Park Realty respects the intellectual property rights of others. If you believe that your work has been copied in a way that constitutes copyright infringement, please provide our designated agent with written notice containing the following information: (1) identification of the copyrighted work claimed to have been infringed; (2) identification of the material that is claimed to be infringing; (3) your contact information; (4) a statement that you have a good faith belief that use of the material is not authorized; and (5) a statement that the information in the notification is accurate and you are authorized to act on behalf of the copyright owner. Please send DMCA notices to: [email protected]
