


117 Farmwell Drive in Neely Park, Woodruff, SC
117 Farmwell Drive, Woodruff, SC 29388
$314,999
$314,999
Does this home feel like a match?
Let us know — it helps us curate better suggestions for you.
Property Highlights
Bedrooms
4
Bathrooms
2
Living Area
2,169 SqFt
Property Details
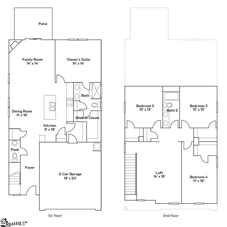
The Sweetbay floor plan at Neely Park Walk in Woodruff, SC, is a spacious and thoughtfully designed two-story home featuring 4 bedrooms, 2.5 bathrooms, and a 2-car garage. The main level offers an open-concept layout connecting the kitchen, dining, and family rooms, with sliding doors that lead to a patio, while the owner’s suite is tucked in the back for added privacy.
Time on Site
1 month ago
Property Type
Residential
Year Built
2025
Lot Size
N/A
Price/Sq.Ft.
$145
HOA Fees
Request Info from Buyer's AgentProperty Details
School Information
Loading map...
Additional Information
Agent Contacts
- Greenville: (864) 757-4000
- Simpsonville: (864) 881-2800
Community & H O A
Room Dimensions
Property Details
Exterior Features
- Brick Veneer-Partial
- Vinyl Siding
- Patio
- Porch-Front
- Vinyl/Aluminum Trim
Interior Features
- 1st Floor
- Walk-in
- Carpet
- Luxury Vinyl Tile/Plank
- Dishwasher
- Disposal
- Stand Alone Range-Gas
- Microwave-Built In
- Loft
- Breakfast Area
- Ceiling Smooth
- Countertops-Solid Surface
- Open Floor Plan
- Walk In Closet
Systems & Utilities
- Central Forced
- Electric
- Forced Air
- Natural Gas
Showing & Documentation
The information is being provided by Greater Greenville MLS. Information deemed reliable but not guaranteed. Information is provided for consumers' personal, non-commercial use, and may not be used for any purpose other than the identification of potential properties for purchase. Copyright 2025 Greater Greenville MLS. All Rights Reserved.
