


341 Pinaster Path in Pinecrest, West Columbia, SC
341 Pinaster Path, West Columbia, SC 29170
$253,952
$253,952
Does this home feel like a match?
Let us know — it helps us curate better suggestions for you.
Property Highlights
Bedrooms
3
Bathrooms
3
Living Area
1,589 SqFt
Property Details
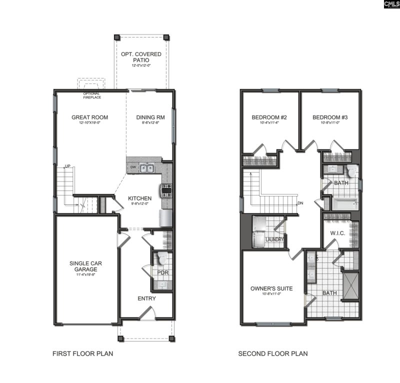
*Home is under construction. Estimated completion in November. * The Camelia features an entryway with a powder room to the right.
Time on Site
4 months ago
Property Type
Residential
Year Built
2025
Lot Size
3,920 SqFt
Price/Sq.Ft.
$160
HOA Fees
Request Info from Buyer's AgentListing Information
- LocationWest Columbia
- MLS #COL614384
- Last UpdatedNovember 4, 2025
Property Details
School Information
Loading map...
Additional Information
Property Details
Exterior Features
Interior Features
Contact Information
Systems & Utilities
Location Information
Details provided by Consolidated MLS and may not match the public record. Learn more. The information is being provided by Consolidated Multiple Listing Service, Inc. Information deemed reliable but not guaranteed. Information is provided for consumers' personal, non-commercial use, and may not be used for any purpose other than the identification of potential properties for purchase. © 2025 Consolidated Multiple Listing Service, Inc. All Rights Reserved.
Listing Information
- LocationWest Columbia
- MLS #COL614384
- Last UpdatedNovember 4, 2025
