


429 Blissful Court in Northbrook Village Townes, Taylors, SC
429 Blissful Court, Taylors, SC 29687
$261,900
$261,900
Does this home feel like a match?
Let us know — it helps us curate better suggestions for you.
Property Highlights
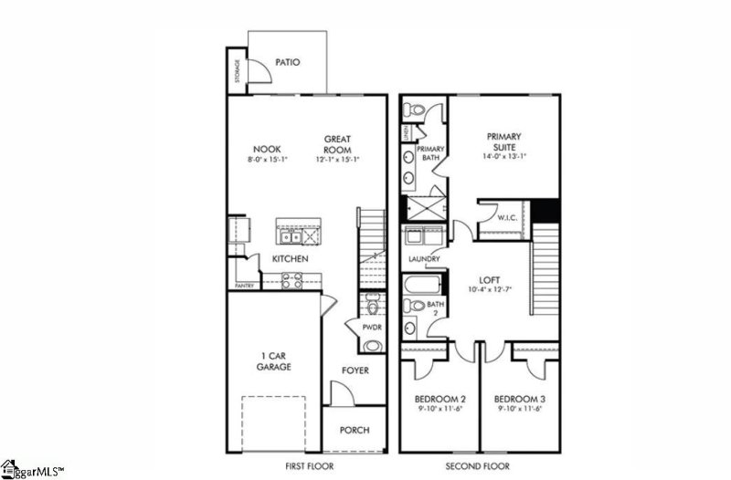
Bedrooms
3
Bathrooms
2
Living Area
1,601 SqFt
Property Details
Brand new, energy-efficient home available by Nov 2025! Invite friends over to watch the big game in the spacious second-story loft. The primary suite features dual sinks and a large walk-in closet.
Time on Site
1 month ago
Property Type
Residential
Year Built
2025
Lot Size
2,178 SqFt
Price/Sq.Ft.
$164
HOA Fees
Request Info from Buyer's AgentProperty Details
School Information
Loading map...
Additional Information
Agent Contacts
- Greenville: (864) 757-4000
- Simpsonville: (864) 881-2800
Community & H O A
Room Dimensions
Property Details
- Level
- Some Trees
Exterior Features
Interior Features
- 2nd Floor
- Walk-in
- Carpet
- Ceramic Tile
- Laminate Flooring
- Dishwasher
- Disposal
- Dryer
- Stand Alone Range-Gas
- Refrigerator
- Washer
- Microwave-Built In
- Laundry
- Loft
- Ceiling 9ft+
- Ceiling Smooth
- Countertops Granite
- Countertops-Solid Surface
- Walk In Closet
- Countertops – Quartz
- Pantry – Walk In
Systems & Utilities
- Gas
- Tankless
Showing & Documentation
- Restric.Cov/By-Laws
- Other/See Remarks
- Vacant
- Other/See Remarks
- Copy Earnest Money Check
- Pre-approve/Proof of Fund
The information is being provided by Greater Greenville MLS. Information deemed reliable but not guaranteed. Information is provided for consumers' personal, non-commercial use, and may not be used for any purpose other than the identification of potential properties for purchase. Copyright 2025 Greater Greenville MLS. All Rights Reserved.
