




105 Selton Place in Freeman Park, Taylors, SC
SOLD105 Selton Place, Taylors, SC 29687
$219,259
$219,259
Sale Summary
Sold below asking price • Sold quickly
Does this home feel like a match?
Let us know — it helps us curate better suggestions for you.
Property Highlights
Bedrooms
3
Bathrooms
2
Living Area
1,440 SqFt
Property Details
This Property Has Been Sold
This property sold 2 weeks ago and is no longer available for purchase.
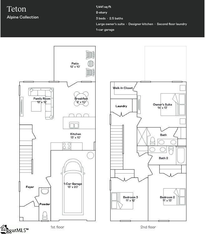
View active listings in Freeman Park →The Teton floorplan at Freeman Park in Taylors, SC offers a modern, low-maintenance lifestyle in a thoughtfully designed two-story townhome. The open-concept main floor seamlessly connects the kitchen, family room, and breakfast nook, with a patio that extends the living space outdoors—perfect for enjoying South Carolina’s mild climate. Upstairs, all three bedrooms provide privacy and comfort, including an owner's suite with en-suite bath and a shared full bath with dual sinks for added convenience.
Time on Site
2 months ago
Property Type
Residential
Year Built
N/A
Lot Size
2,178 SqFt
Price/Sq.Ft.
$152
HOA Fees
Request Info from Buyer's AgentProperty Details
School Information
Loading map...
Additional Information
Agent Contacts
- Greenville: (864) 757-4000
- Simpsonville: (864) 881-2800
Community & H O A
Room Dimensions
Property Details
- Traditional
- Craftsman
- Corner
- Level
- Underground Utilities
Exterior Features
- Brick Veneer-Partial
- Hardboard Siding
- Patio
- Tilt Out Windows
- Vinyl/Aluminum Trim
Interior Features
- 2nd Floor
- Closet Style
- Carpet
- Ceramic Tile
- Laminate Flooring
- Dishwasher
- Disposal
- Cable Available
- Ceiling 9ft+
- Ceiling Smooth
- Countertops-Solid Surface
- Open Floor Plan
- Smoke Detector
- Walk In Closet
- Countertops – Quartz
- Pantry – Closet
Systems & Utilities
- Central Forced
- Electric
- Damper Controlled
- Forced Air
- Natural Gas
- Damper Controlled
Showing & Documentation
- Warranty Furnished
- House Plans
- Restric.Cov/By-Laws
- Copy Earnest Money Check
- Pre-approve/Proof of Fund
- Specified Sales Contract
The information is being provided by Greater Greenville MLS. Information deemed reliable but not guaranteed. Information is provided for consumers' personal, non-commercial use, and may not be used for any purpose other than the identification of potential properties for purchase. Copyright 2025 Greater Greenville MLS. All Rights Reserved.
