





315 Clipper Court in Cane Bay Plantation, Summerville, SC
315 Clipper Court, Summerville, SC 29486
$450,939
$450,939
Does this home feel like a match?
Let us know — it helps us curate better suggestions for you.
Property Highlights
Bedrooms
4
Bathrooms
2
Property Details
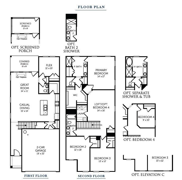
READY NOV! BELTON B FLOORPLAN! 4 bedroom, 2.5 bathroom & flex room on the main floor. Great for 5th bedroom or office!! Kitchen great for entertaining, granite countertops, tiled backsplash, walk-in pantry & gas range. Luxury Vinyl Plank on main floor. Ceiling fan in great room with lots of natural light. Primary bathroom with 5' shower, tiled floor and dual vanity sinks. Huge walk-in closet. 2 secondary bedrooms and hall bathroom. Great loft area for entertaining. Whole house blinds. Separate laundry room. Covered patio. Pull down attic steps. Price reflects incentive plus $10,000 towards closing costs PLUS REDUCED RATE FINANCING with the use of Sellers Preferred Lender and Closing Attorney (must close by 12/31/25). See agent for details! Photos are of similar homeREDUCED RATE FINANCING on loans with the use of Sellers Preferred Lender and Closing Attorney (must close by 12/31/25) See agent for details! Photos are of similar home. Ask about Hometown Hero / Boeing / Blackbaud / Volvo Incentives! ENERGY SAVING FEATURES: 14 SEER HVAC, Gas furnace, TANKLESS gas hot water heater, Low-e windows, RADIANT BARRIER in attic and every home is HERS
Time on Site
3 months ago
Property Type
Residential
Year Built
2025
Lot Size
5,662 SqFt
Price/Sq.Ft.
N/A
HOA Fees
Request Info from Buyer's AgentProperty Details
School Information
Additional Information
Region
Lot And Land
Agent Contacts
Green Features
Community & H O A
Room Dimensions
Property Details
Exterior Features
Interior Features
Systems & Utilities
Financial Information
Additional Information
- IDX
- -80.110816
- 33.151359
- Slab
