
Nexton
$610k




View All30 Photos

Nexton
30
$610k
Quick Build OptionFull Bath FROGTrees Behind Home
Nexton Living: Build the Preston Plan with FROG and Amenities
Nexton
Quick Build OptionFull Bath FROGTrees Behind Home
1721 Trailmore Lane, Summerville, SC 29486
$609,990
$609,990
208 views
21 saves
Property Highlights
Bedrooms
3
Bathrooms
2
Property Details
Quick Build OptionFull Bath FROGTrees Behind Home
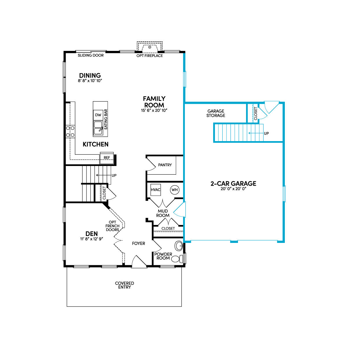
With a highly desired FROG, build this Preston backing to trees and have your dream home within a few months! Charming front porch welcomes you. Your office is to your left as you step inside.
Time on Site
6 months ago
Property Type
Residential
Year Built
2025
Lot Size
8,712 SqFt
Price/Sq.Ft.
N/A
HOA Fees
Request Info from Buyer's AgentProperty Details
Bedrooms:
3
Bathrooms:
2
Total Building Area:
2,300 SqFt
Property Sub-Type:
SingleFamilyResidence
Garage:
Yes
Stories:
2
School Information
Elementary:
Nexton Elementary
Middle:
Sangaree Intermediate
High:
Cane Bay High School
School assignments may change. Contact the school district to confirm.
Additional Information
Region
0
C
1
H
2
S
Lot And Land
Lot Features
Level, Wooded
Lot Size Area
0.2
Lot Size Acres
0.2
Lot Size Units
Acres
Agent Contacts
List Agent Mls Id
38266
List Office Name
Brookfield Mid-Atlantic Brokerage, LLC
List Office Mls Id
10467
List Agent Full Name
Elizabeth Ellis
Green Features
Green Building Verification Type
HERS Index Score
Community & H O A
Community Features
Clubhouse, Dog Park, Fitness Center, Park, Pool, Tennis Court(s), Walk/Jog Trails
Room Dimensions
Bathrooms Half
1
Room Master Bedroom Level
Upper
Property Details
Directions
From Nexton Parkway, Turn Onto Midtown Ave And Head Down Past The Clubhouse, Pool And Sports Courts And Make A Right On Clearpath. Make A Left On Sandy Bend Lane And Then A Right Onto Trailmore And Homesites Will Be On Your Left.
M L S Area Major
74 - Summerville, Ladson, Berkeley Cty
Tax Map Number
Temp1583
County Or Parish
Berkeley
Property Sub Type
Single Family Detached
Architectural Style
Craftsman
Construction Materials
Cement Siding
Exterior Features
Roof
Architectural
Other Structures
No
Parking Features
2 Car Garage, Attached
Patio And Porch Features
Front Porch, Porch - Full Front, Screened
Interior Features
Heating
Forced Air, Natural Gas
Flooring
Ceramic Tile, Luxury Vinyl
Laundry Features
Laundry Room
Interior Features
High Ceilings, Kitchen Island, See Remarks, Walk-In Closet(s), Eat-in Kitchen, Family, Entrance Foyer, Frog Attached, Great, Living/Dining Combo, In-Law Floorplan, Pantry, Study
Systems & Utilities
Sewer
Public Sewer
Water Source
Public
Financial Information
Listing Terms
Any
Additional Information
Stories
2
Garage Y N
true
Carport Y N
false
Cooling Y N
true
Feed Types
- IDX
Heating Y N
true
Listing Id
25006061
Mls Status
Active
City Region
Midtown
Listing Key
987d6812a351a5c0dde9ebbdf77ef52f
Coordinates
- -80.116144
- 33.078526
Fireplace Y N
false
Parking Total
2
Carport Spaces
0
Covered Spaces
2
Home Warranty Y N
true
Standard Status
Active
Source System Key
20250307163024792860000000
Attached Garage Y N
true
Building Area Units
Square Feet
Foundation Details
- Slab
Property Attached Y N
false
Special Listing Conditions
10 Yr Warranty
Showing & Documentation
Internet Address Display Y N
true
Internet Consumer Comment Y N
true
Internet Automated Valuation Display Y N
true