
Ellison
$225k




View All6 Photos

Ellison
6
$225k
4074 Chessgrove Way in Ellison, Spartanburg, SC
4074 Chessgrove Way, Spartanburg, SC 29307
$224,999
$224,999
202 views
20 saves
Property Highlights
Bedrooms
3
Bathrooms
2
Living Area
1,440 SqFt
Property Details
The Aspen single-family home has it all. Enter the huge great room and immediately feel at home. The first floor's open concept means you are never far from the action.
Time on Site
2 months ago
Property Type
Residential
Year Built
N/A
Lot Size
6,534 SqFt
Price/Sq.Ft.
$156
HOA Fees
Request Info from Buyer's AgentProperty Details
Bedrooms:
3
Bathrooms:
2
Living Area:
1,440 SqFt
Total Building Area:
1,440 SqFt
Property Sub-Type:
SingleFamilyResidence
Garage:
Yes
Stories:
2
School Information
Elementary:
Jesse W Boyd
Middle:
McCraken
High:
Spartanburg
School assignments may change. Contact the school district to confirm.
Additional Information
Region
0
G
1
V
2
L
Agent Contacts
Request Showing
- Greenville: (864) 757-4000
- Simpsonville: (864) 881-2800
Listing Courtesy Of
Mallory Edge of Ryan Homes
Community & H O A
H O A
Y
Additional Fees
HOA Mgmt Transfer Fee
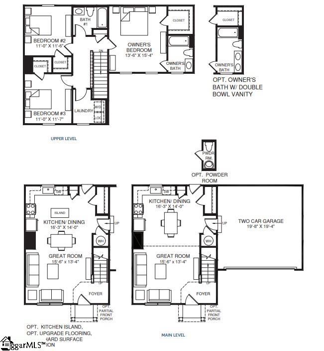
Room Dimensions
Kitchen Size
16x14
Bedroom #2 Size
11x11
Bedroom #3 Size
11x11
Great Room Size
15x13
Primary Bedroom Size
13x15
Property Details
County
Spartanburg
Roof Type
- Architectural
- Other/See Remarks
Foundation
Slab
Home Style
- Traditional
- Craftsman
Tax I D Number
7-10-00-252.00
Lot Description
- Some Trees
- Other/See Remarks
Lot Size Description
1/2 Acre or Less
Square Footage Range
1400-1599
Exterior Features
Driveway
- Paved
- Paved Concrete
Exterior Finish
Vinyl Siding
Exterior Features
- Patio
- Tilt Out Windows
- Vinyl/Aluminum Trim
- Windows-Insulated
Interior Features
Laundry
- 2nd Floor
- Walk-in
Flooring
- Carpet
- Ceramic Tile
- Other/See Remarks
- Luxury Vinyl Tile/Plank
Appliances
- Dishwasher
- Disposal
- Dryer
- Refrigerator
- Washer
- Other/See Remarks
- Stand Alone Rng-Electric
- Microwave-Built In
Storage Space
- Attic
- Garage
Specialty Rooms
- Laundry
- Other/See Remarks
Interior Features
- Attic Stairs Disappearing
- Cable Available
- Ceiling 9ft+
- Ceiling Fan
- Ceiling Smooth
- Open Floor Plan
- Smoke Detector
- Walk In Closet
- Other/See Remarks
Number Of Fireplaces
0
Systems & Utilities
Sewer
Other/See Remarks
Water Heater
Electric
Water Source
Other/See Remarks
Cooling System
- Central Forced
- Electric
- Damper Controlled
Garbage Pickup
Private
Heating System
- Electric
- Damper Controlled
Showing & Documentation
Documents On File
None
Showing Instructions
Appointment/Call Center
Documents Required With Offer
None
Lead- Based Paint Disclosure Required
No
Residential Property Disclosure Required
No
The information is being provided by Greater Greenville MLS. Information deemed reliable but not guaranteed. Information is provided for consumers' personal, non-commercial use, and may not be used for any purpose other than the identification of potential properties for purchase. Copyright 2025 Greater Greenville MLS. All Rights Reserved.