Sold on 9/23/2025 for $303,000



418 Yellowstone Trail, Gray Court, SC 29645
$318,910
$318,910
Sale Summary
Sold below asking price • Sold quickly
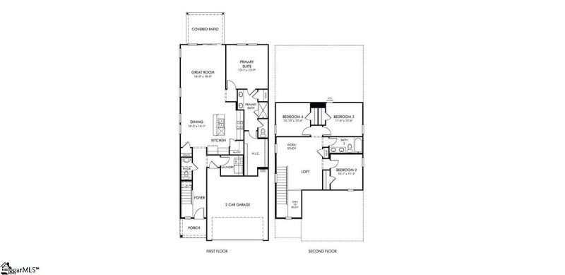
Bedrooms
4
Bathrooms
2
Living Area
2,018 SqFt
This property sold 1 month ago and is no longer available for purchase.
View active listings in The Farm at Wells Creek →Brand new, energy-efficient home available by Aug 2025! 0.13 ACRES, RADIANT, 2012 SQFT Unwind at the end of the day in the private first-floor primary suite, complete with dual sinks and an impressive walk-in closet.
Time on Site
3 months ago
Property Type
Residential
Year Built
2025
Lot Size
5,227 SqFt
Price/Sq.Ft.
$158
HOA Fees
Request Info from Buyer's AgentThe information is being provided by Greater Greenville MLS. Information deemed reliable but not guaranteed. Information is provided for consumers' personal, non-commercial use, and may not be used for any purpose other than the identification of potential properties for purchase. Copyright 2025 Greater Greenville MLS. All Rights Reserved.