Sold on 1/14/2025 for $250,999



53 Fernhill Lane, Fountain Inn, SC 29644
$246,999
$246,999
Sale Summary
Sold above asking price • Sold quickly
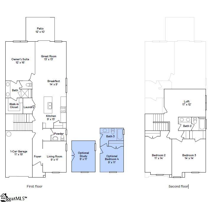
Bedrooms
3
Bathrooms
2
Living Area
1,983 SqFt
This property sold 11 months ago and is no longer available for purchase.
View active listings in Stoneledge Cottages →Move In Ready!!! Welcome home to the beautiful Berkley floorplan. This home is expected to be complete in November.
Time on Site
1 year ago
Property Type
Residential
Year Built
2024
Lot Size
2,178 SqFt
Price/Sq.Ft.
$125
HOA Fees
Request Info from Buyer's AgentLoading map...
The information is being provided by Greater Greenville MLS. Information deemed reliable but not guaranteed. Information is provided for consumers' personal, non-commercial use, and may not be used for any purpose other than the identification of potential properties for purchase. Copyright 2025 Greater Greenville MLS. All Rights Reserved.