Sold on 1/21/2025 for $210,000


1306 Carmichael Place, Piedmont, SC 29673
$245,889
$245,889
Sale Summary
Sold below asking price • Sold in typical time frame
Bedrooms
3
Bathrooms
2
Living Area
1,983 SqFt
This property sold 10 months ago and is no longer available for purchase.
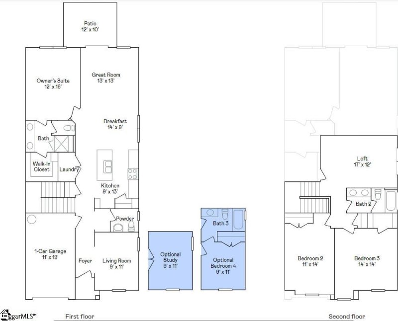
View active listings in Woodmont Springs →Fantastic new community with Grand Opening pricing! Spacious Berkley plan with owner suite on the first floor. Spacious bedrooms on second floor with large loft.
Time on Site
1 year ago
Property Type
Residential
Year Built
N/A
Lot Size
N/A
Price/Sq.Ft.
$124
HOA Fees
Request Info from Buyer's AgentLoading map...
The information is being provided by Greater Greenville MLS. Information deemed reliable but not guaranteed. Information is provided for consumers' personal, non-commercial use, and may not be used for any purpose other than the identification of potential properties for purchase. Copyright 2025 Greater Greenville MLS. All Rights Reserved.