Sold on 5/19/2023 for $306,849





More Photos
19 Chalet Court, Anderson, SC 29621
$299,000
$299,000
Sale Summary
Sold above asking price • Extended time on market
Bedrooms
4
Bathrooms
3
This property sold 2 years ago and is no longer available for purchase.
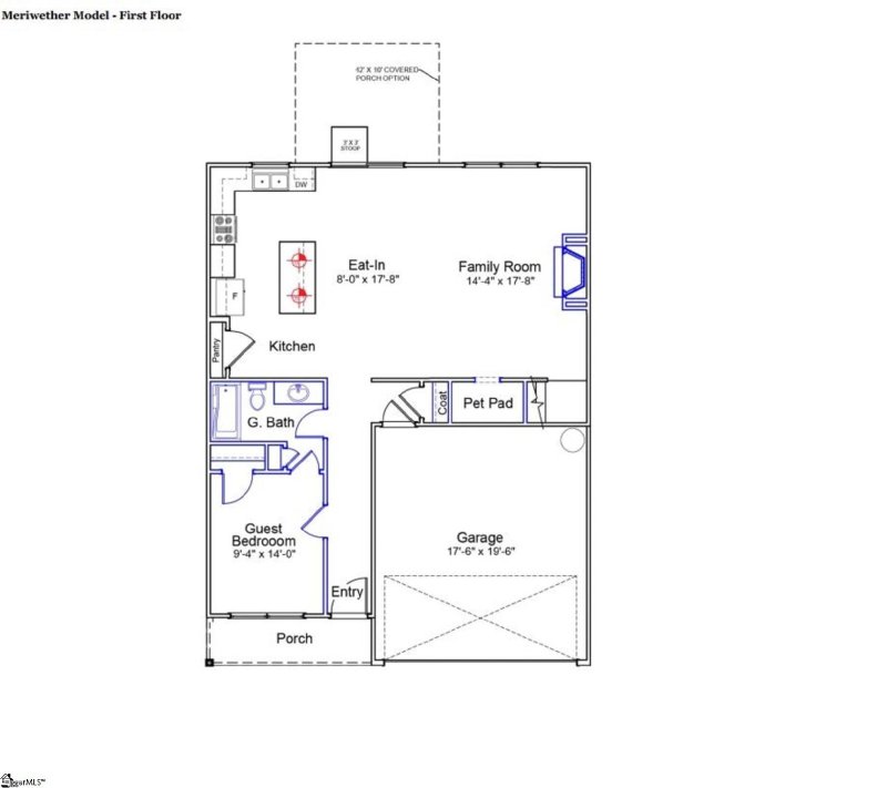
View active listings in Cottages at College Parke →This Meriwether plan is a beautiful four bedroom, three full bath home, and two car garage! When you enter the home, you will notice the door to the guest bedroom and full bath on the main level with luxury vinyl plank floors. Just past the guest bedroom and full bath is the “open concept” main living area of the home with an expansive great room, which has lots of space for entertaining friends, family, and hosting those special holidays.
Time on Site
2 years ago
Property Type
Residential
Year Built
N/A
Lot Size
4,791 SqFt
Price/Sq.Ft.
N/A
HOA Fees
Request Info from Buyer's AgentLoading map...
The information is being provided by Greater Greenville MLS. Information deemed reliable but not guaranteed. Information is provided for consumers' personal, non-commercial use, and may not be used for any purpose other than the identification of potential properties for purchase. Copyright 2025 Greater Greenville MLS. All Rights Reserved.